EYECAD®
Ver.10.21
オンラインヘルプ
全マニュアル
はじめに
共通
EYEPIPE
EYEPID
EYEPFA
EYEPRD
EYELIST
EYESUPT
EYESTEEL
export3D/LT
EYESTEP
EYEpoints
全角・半角の英数字を区別する
大文字・小文字を区別する
OR検索
AND検索
オンラインヘルプの見かた
TOP
13 3D図面編集出力
13-08 各種図面事例
目次
13-08 各種図面事例
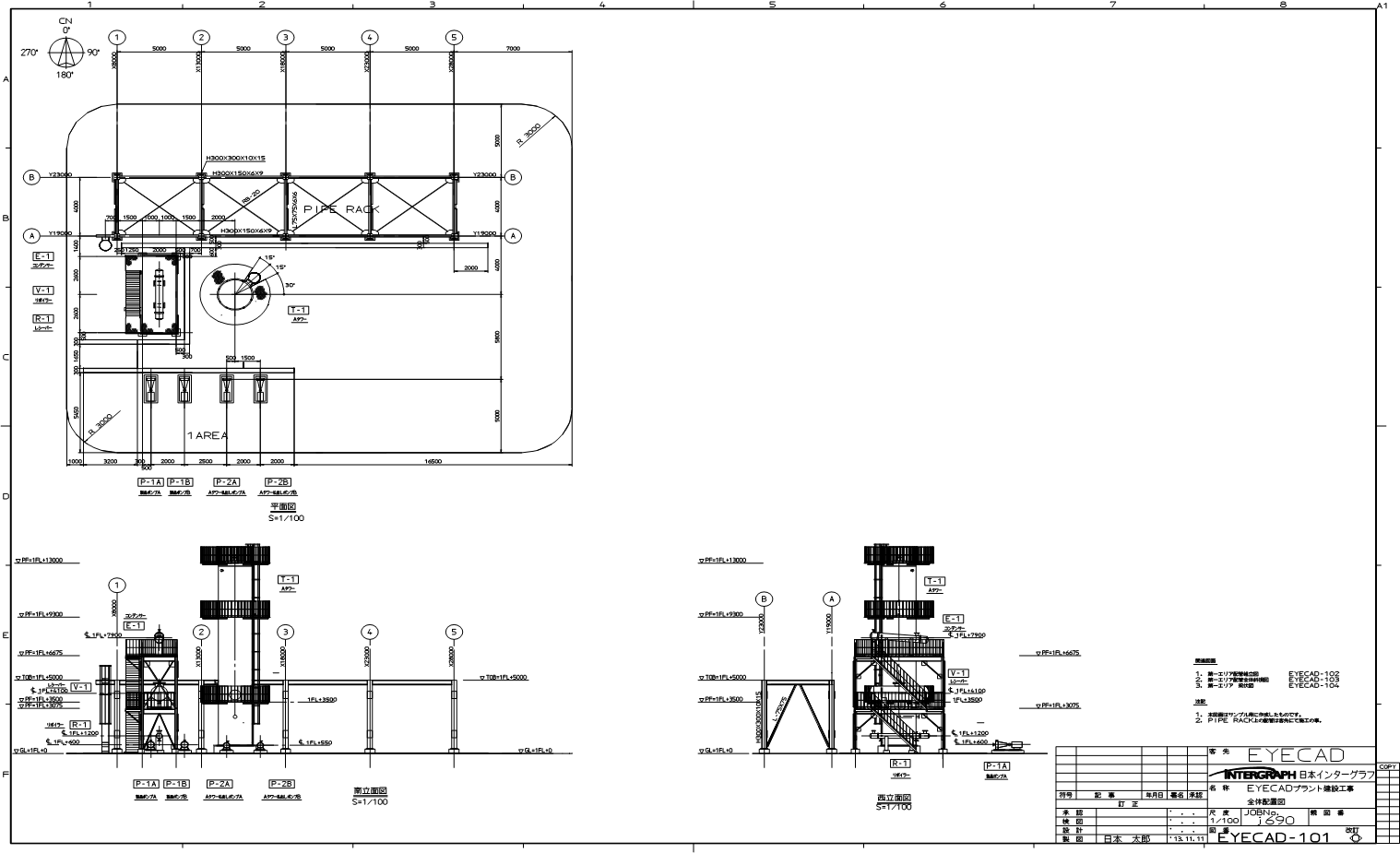
全体配置図
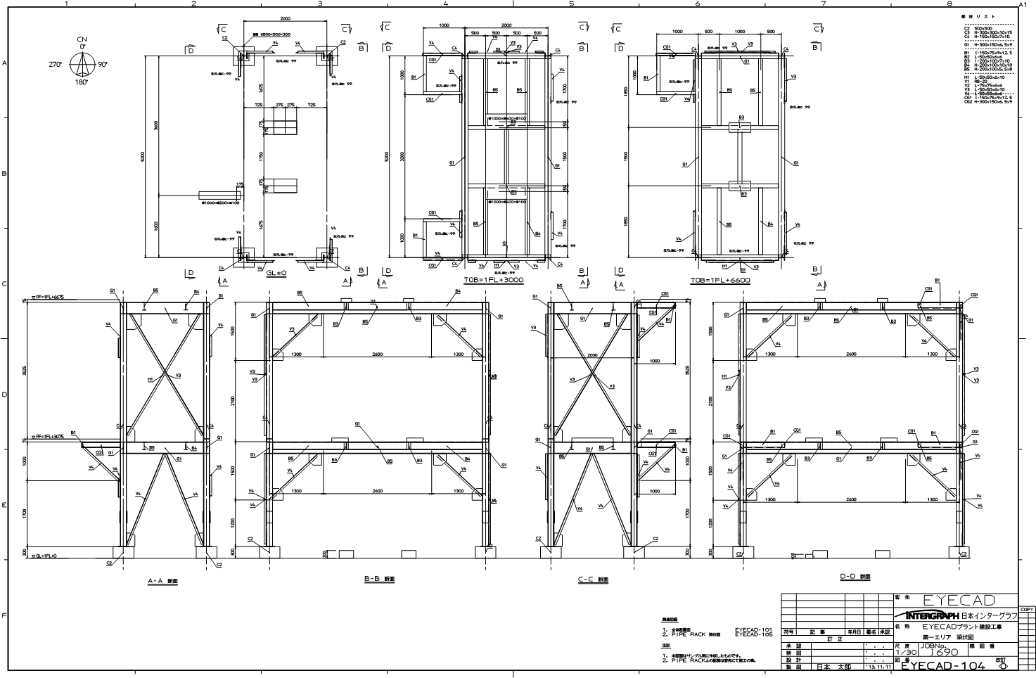
架構機器配置図(平面図)・部材リスト
架構機器配置図(立面図)・部材リスト
配管組立図
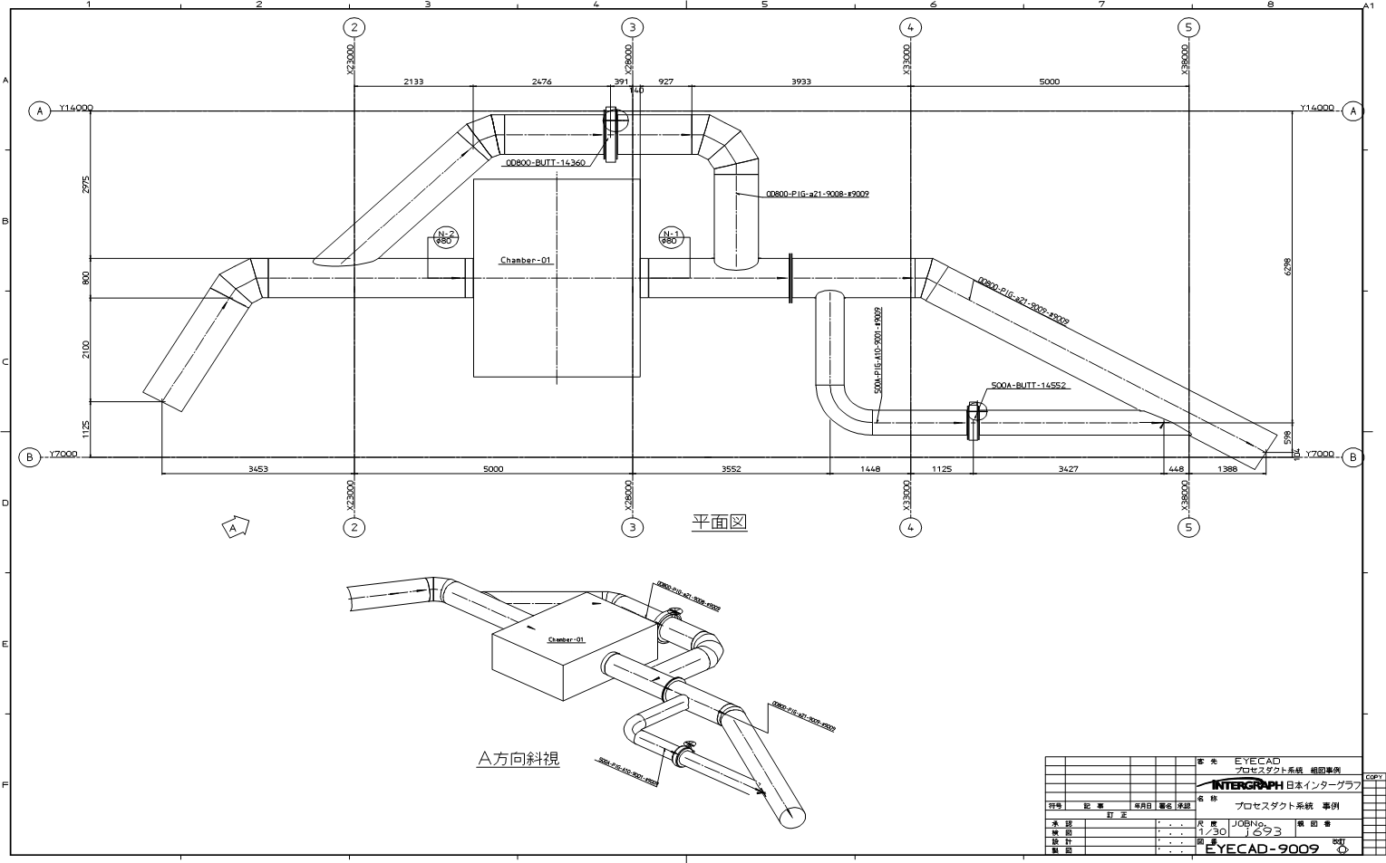
プロセスダクト系統 組図事例
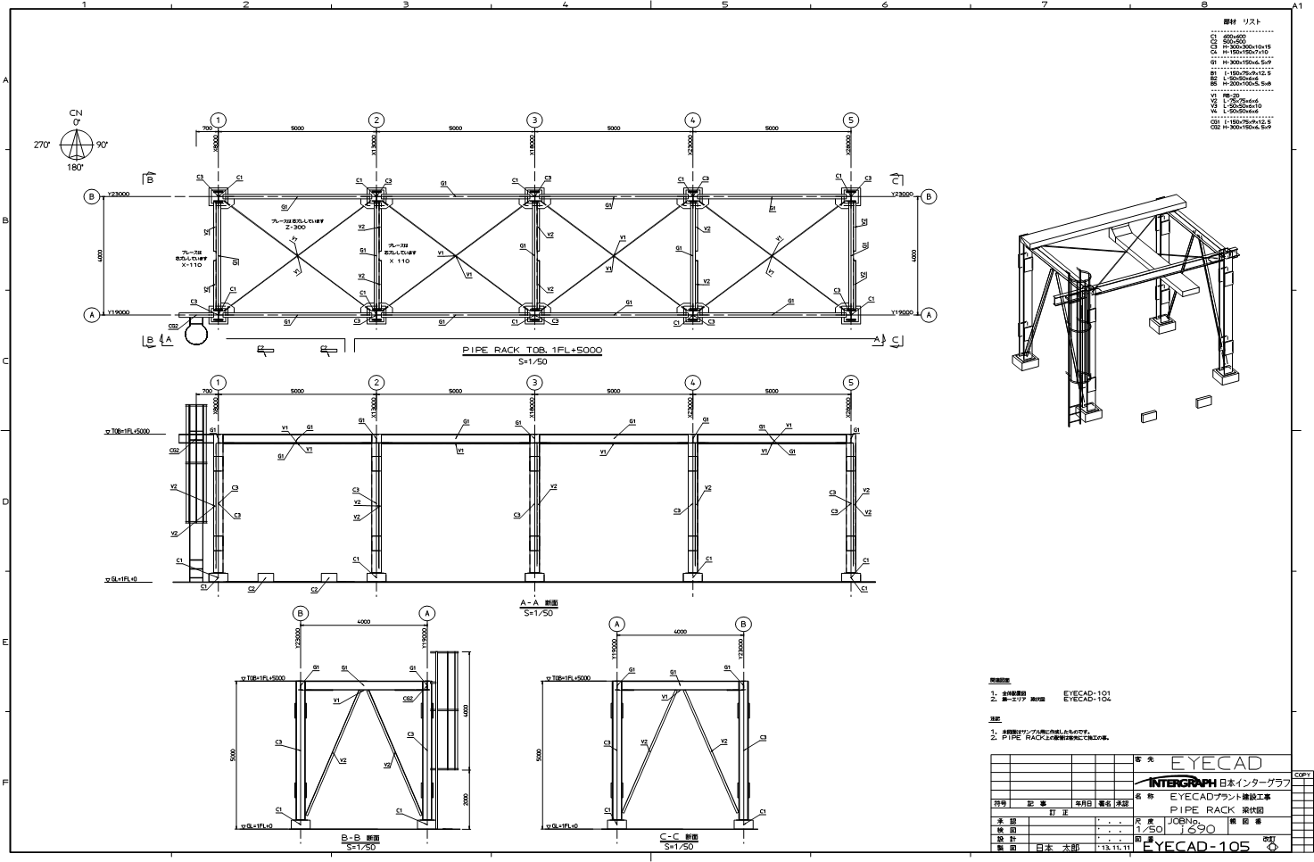
梁伏図
機器廻り部材図
機器廻り三面図
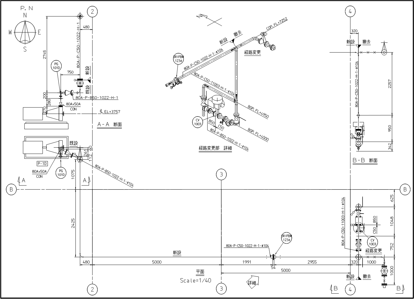
新設・既設・撤去配管の取合事例図
床、壁 貫通図の事例
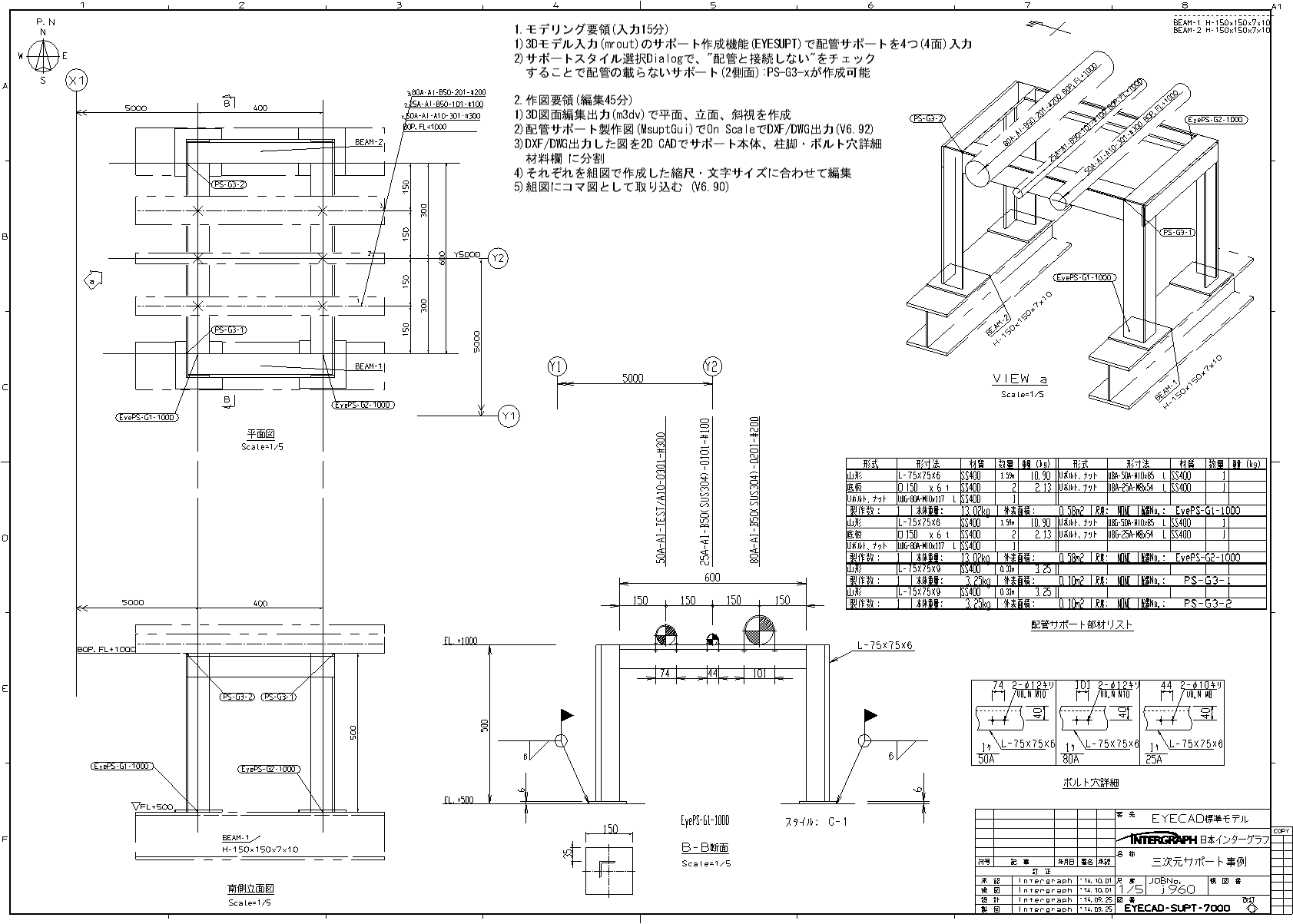
三次元サポートの事例
13
08 各種図面事例
全体配置図
※画像を選択すると拡大表示します。
架構機器配置図(平面図)・部材リスト
※画像を選択すると拡大表示します。
架構機器配置図(立面図)・部材リスト
※画像を選択すると拡大表示します。
配管組立図
※画像を選択すると拡大表示します。
プロセスダクト系統 組図事例
※画像を選択すると拡大表示します。
梁伏図
※画像を選択すると拡大表示します。
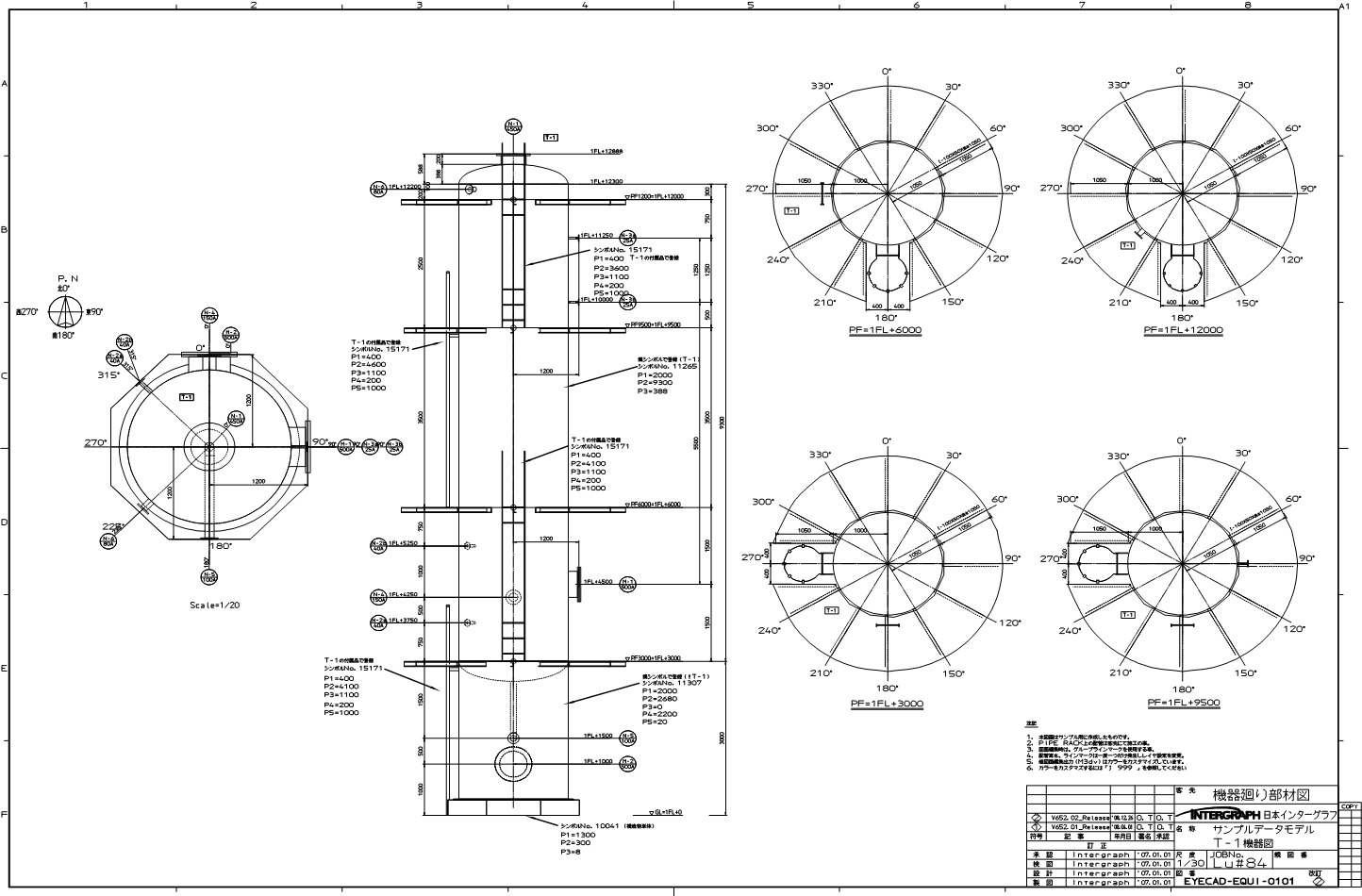
機器廻り部材図
※画像を選択すると拡大表示します。
機器廻り三面図
※画像を選択すると拡大表示します。
新設・既設・撤去配管の取合事例図
※画像を選択すると拡大表示します。
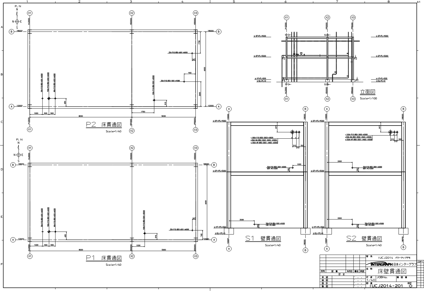
床、壁 貫通図の事例
※画像を選択すると拡大表示します。
三次元サポートの事例
※画像を選択すると拡大表示します。
ページ内検索
全角・半角の英数字を区別する
大文字・小文字を区別する
閉じる
ページ内検索