13 曲げ、マイタ、環状配管
曲げ配管
曲がりポイントにベンド設定
曲がり部をスムースベンド、切合せ曲げにします。

「曲がりポイントにベンド設定」の操作方法
-
ベンド設定したい曲がり部を指定します。
配管の曲がりポイントすべてにベンド設定する場合は、その配管を一次選択、特定の曲がり部をベンド設定した場合はその曲がり部を二次選択状態にします。
-
[曲がりポイントにベンド設定]]モードに入ります。
[曲がりポイントにベンド設定]モードへは、2通りの方法で入ることができます。
-
Menu barより〔配管(L)〕-〔曲がりポイントにベンド設定〕を選択します。
-
右clickでメニューを呼び出し、〔曲がりポイントにベンド設定〕を選択します。(二次選択時)
-
-
ベンド曲げの設定をします。
[曲がりポイントにベンド設定]モードに入ると、【ベンド設定】Dialogが表示されます。
ベンドタイプ,曲げ半径,セグ数を設定してください。

-
ベンドタイプ
ベンドのタイプを設定します。
タイプ 内容 1 スムースベンド スプール図出力時にパイプ長は1本の長さで集計されます。 2 切り合わせ曲げ スプール図出力時にパイプ長は各切り合せ部で切断された長さで集計されます。 -
曲げ半径
種類 内容 自動決定 配管のスペッククラスに設定してある曲げ半径寸法列Codeからパイプ径に対応する曲げ半径を自動決定します。
曲げ半径寸法列の登録は「部品・一般弁寸法列編集(EditDimension)」で登録修正が可能です。
(ベンド曲率半径はIDAC:21~40となります)
数値入力 曲げ半径を数値で入力してください。 パイプ径の倍率 パイプ径の倍率を数値で入力してください。 -
セグ数
出力図で曲がり部を表現する部品の数を指定します。
切り合わせ曲げのとき、セグ数と同じ数の部品で曲がり部を表現します。
スムースベンドでは、設定した"セグ数-1"の部品で曲がり部を表現します。
-
-
[曲がりポイントにベンド設定]モードを終了します。
【ベンド設定】Dialogの[OK]ボタンをclickしてください。
曲がり部がベンドに変わります。

スムースベンド
パイプ長は1本の長さで集計されます。
| モデリング画面 | 組図 | スプール | |
|---|---|---|---|
| 0セグ | ![]() |
![]() |
![]() |
|
材料欄 ![]() |
|||
| 1セグ | ![]() |
0セグと同じ |
![]() |
|
材料欄 ![]() |
|||
| 2セグ | ![]() |
切り合せの1セグと同じ |
AG(J)CNSTD094Page31W目に"515"を設定により、曲率半径マークを1ヶ所の表示に変更できます。 詳細は15-06-4-1参照方 |
|
材料欄 ![]() |
|||
| 3セグ | ![]() |
切り合せの2セグと同じ |
![]() |
|
材料欄 ![]() |
|||
| 4セグ | ![]() |
切り合せの3セグと同じ |
![]() |
|
材料欄 ![]() |
|||
切り合せ曲げ
パイプ長は各切り合せ部で切断された長さで集計されます。
| モデリング画面 | 組図 | スプール | |
|---|---|---|---|
| 0セグ | ![]() |
![]() |
![]() |
|
材料欄 ![]() V690.02現在、Pipeのendsは正確に表示されません。 |
|||
| 1セグ | ![]() |
![]() |
![]() |
|
材料欄 ![]() |
|||
| 2セグ | ![]() |
![]() |
![]() |
|
材料欄 ![]() |
|||
| 3セグ | ![]() |
![]() |
![]() |
|
材料欄 ![]() |
|||
| 4セグ | ![]() |
![]() |
![]() |
|
材料欄 ![]() |
|||
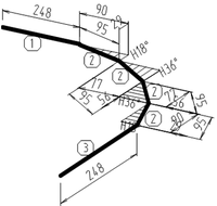
角度と長さを指定して切り合わせ曲げを入力する手順
下図のように、曲り角度と切り合せ曲げの1辺の長さを指定(図の175mm)して曲げ配管を入力する手順を説明します。

-
水平に500mmの配管を入力します。

-
成長コマンドを使用し、任意の仮の角度(例:45度など)で曲りを入力します。


-
斜めのパイプを二次選択し、「勾配設定」のコマンドで傾きを3°に設定します。

-
特殊角度エルボを二次選択し、「曲がりポイントにベンド設定」のコマンドでベンド設定をします。
ベンドタイプ:切り合わせ曲げ、曲げ半径:自動決定、セグ数:0

-
成長コマンドを使用し、距離タブで斜めの配管の長さを175mmに設定します。

-
成長コマンドを使用し、さらに任意の仮の角度(例:45度など)で曲りを入力します。

-
斜めのパイプを二次選択し、「勾配設定」のコマンドで傾きを6°に設定します。

-
特殊角度エルボを二次選択し、「曲がりポイントにベンド設定」のコマンドでベンド設定をします。
ベンドタイプ:切り合わせ曲げ、曲げ半径:自動決定、セグ数:0

-
成長コマンドを使用し、距離タブで斜めの配管の長さを500mmに設定します。
「ポイントが追加できません」エラーが表示される場合は一度1000mm等に伸ばしてから縮めてください。


環状配管入力
環状配管入力とは
環状配管入力とは、機器外周のベンド曲げ配管を入力する機能で、組フランジ,バルブ等の付属品,カタログラインの挿入を使って分岐ラインも入力できます。
「環状配管入力」の操作方法
環状配管入力は、配管成長中に「環状配管入力」モードに入って行います。
-
環状配管の開始点まで配管を成長させます。

-
[環状配管入力]モードに入ります。
メニューバーより〔配管(L)〕-〔リング管入力〕を選択します。
-
環状配管を成長させる際のパラメータを設定します。
【リング管】ダイアログが表示されますので、入力したい環状配管にあわせて設定します。

環状配管の中心点を入力します。
中心点座標には、2通りの入力方法があります。
-
中心点座標を直接入力します。
-
環状配管の中心となる機器をクリックした後、[中心点対象の選択]をクリックして中心点の座標値を微調整します。
環状配管の中間点(付属品,カタログライン等の入力位置)を追加します。
【リング管入力】ダイアログの[追加]ボタンをクリックしてください。
環状配管に付属品,カタログライン等の入力位置を設定することができます。
入力位置は、2通りの設定方法があります。
-
北方向を0°とした時計廻り方向の絶対角度(0°~359°)で設定する方法。
-
前の点との相対角度で設定する方法。
どちらの方法でも数値を入力し、[更新]をクリックしてください。[更新]をクリックしないと入力した数値が反映されません。
-
-
環状配管を成長させます。
【リング管入力】ダイアログに数値を設定した後、[OK]をクリックします。
環状配管が成長します。


環状配管入力時の注意点
-
環状配管入力後、環状配管上にある付属品やカタログ分岐の位置変更はできません。
-
新たに入力点を挿入すると切断パイプ長が長くなりますので、挿入する場合は環状配管の開始点まで後退してやり直してください。
-
環状配管の終点が閉止フランジ止めのときは、環状配管の入力が終了した後、付属品入力で入力してください。
環状配管入力編集事例
mroutの環状配管入力ダイアログによりモデリングを行うと流入配管と環状配管の開始点との接続はエルボが自動発生します。
また、環状配管上に配置したバルブ・配管部品の部品中心からパイプが発生したモデルとなっています。
この修正方法を示します。
-
環状配管開始点をエルボからティーに変更する
-
始点側のパイプ曲げ部を二次選択し、右クリックにより「曲がりポイントにベンド設定」を選び、曲率半径を変更し、両端に短管を発生させます。

-
環状配管を一時選択し、右クリックメニューより一回、終点側を「後退」させ、続けて「接続(終点)」コマンドを選択し、直管部をヒットするとティーが発生します。

-
カットエルボが発生しますので、手順1と同様にして曲率半径を設定しベンド曲げに変更します。

-
ティー接続に変更されました。

-
-
配管部品・バルブの両端に持ち代の短管を発生させる。
入力した時点ではパイプは配管部品・バルブの中心まで延びています。

「環状配管開始点をエルボからティーに変更する」の手順1の方法で曲率半径を変更し短管を発生させます。

オリジナル入力モデルと本編集を行ったモデルのサンプルスプール図を以下に示します。
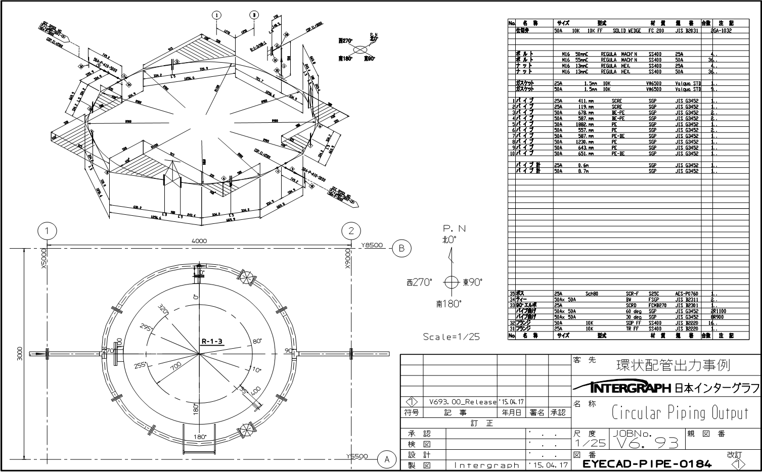
環状配管出力事例
-
オリジナル入力
「「環状配管入力」の操作方法」の手順により入力したモデルの出力事例です。
※画像を選択すると拡大表示します。
-
修正後
「環状配管入力編集事例」の手順により修正した環状配管モデルの出力事例です。
※画像を選択すると拡大表示します。
修正点
-
1)エルボ→ティーに変更
-
2)ベンド曲げの曲率半径を変更
-
3)配管部品両端に短管を発生
-
-
組図にSpool、材料欄をコマ図表記した環状配管図の出力事例
※画像を選択すると拡大表示します。



































