1219 特殊配管部品入力
入出の接続形式の異なる部品設定
-
従来、入出で接続形式の異なる部品に対しては、このPageの様に入側と出側で別々の(片方がダミー)の部品を組み合わせてモデル化していましたが V10.00より、次Pageに示すように、「接続変化」の機能が新たに用意されたので、ほとんどの接続形式が変化する部品はこれを使ってモデル化できるようになりました.
-
入出の接続形式の異なる部品については、シンボルを本体部分とダミー部分に分けて、それぞれを以下のように下流側のオリジンを0.1mm下流側にずらして入力し、両部品の下流の端点を合わせるため、下流側の部品の端端長をH-0.2mmに設定します。
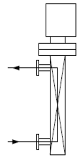
直進部品
-
本体(接続A)

-
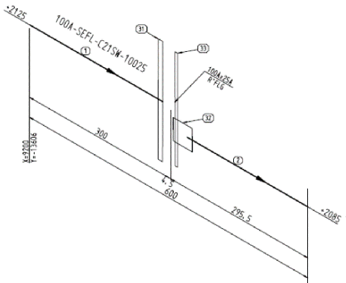
給水栓ソケットの事例 09-13-1-5

-
直進部品シンボルの寸法構造
| 寸法種名 | 記号 | Code | 本体継手シンボル | ダミー(付属品)シンボル |
|---|---|---|---|---|
| 端端長 | H | 113 | 2つのシンボルを一体と考えた面間(端端長) | H-0.2mm |
| 片重長 | LP1 | 70 | 本体の接続形式に該当する片重長 | 接続種(SCRD(R,Rc)、SW、TS、DV)でシステムがBLP1を決定する。 |
| 両重長 | LAP2S | 100 | 片重長のみを参照するので、0値列:IDAC=2000を設定 |
曲がり部品
流れ順でダミー→本体に事例(流れ順が逆の場合は「Set部品(差込接続) ユニオンC形 曲がり SW-(R,SCRE)」を参照)
-
ダミー(接続B)

-
ユニオンC形の事例(ダミー側がオスねじ)09-03-2-4

曲がり部品シンボルの寸法構造
| 寸法種名 | 記号 | Code | 本体継手シンボル | ダミー(付属品)シンボル | |
|---|---|---|---|---|---|
| 端端長 | H | 113 | 本体のHを実際の中後端長-0.1mmに設定して、位置を曲がり中心より、0.1mm下流に設定する。 | 中後端長 | Hmm |
| 片重長 | LP1 | 70 | 本体の接続形式に該当する片重長 | 中前端長 | P3 |
| 両重長 | LAP2S | 100 | 片重長のみを参照するので、0値列:IDAC=2000を設定 | 接続種(SCRD(R,Rc)、SW、TS、DV)でシステムがBLP1を決定する。 | |
入出の接続形式の異なる部品設定
-
「Set部品(差込接続) ユニオンB形 直進 SW-(R,SCRE)」などに、いくつかの標準参照D.B.として接続形式の異なる部品設定の例を示す。
-
これらに該当しない部品をユーザ側で作製する場合は、PMS名称、品目名称をA(B)JITEM、寸法をEditDimensionにて、Hをマイナスの寸法列Codeで設定、または2D平面パターンを該当のIPTNの形状を変更することにより、使用可能となる。
接続変化機能で入口または出口側の接続形式を変更
接続変化機能の概要
配管部品、付属品、計装品など「部品本体」に「接続変化」を設定することでその部品の片側の接続形式を変更することが可能です。 この「部品本体」と「接続変化」を合わせて「セット部品」と呼びます。
接続変化の入力例
サニタリークランプ接続のボール弁の片側を突き合わせ溶接に接続変化

接続変化機能の属性
-
以下のねじ種で、RcはJIS管テーパめねじ、SCRDはJIS-ASME(NPT)共通の管テーパめねじで、その部品の属するクラスによりどちらか判断される。その接続シンボルのクラス内にその接続形式の直進(本体が閉止の場合は閉止)継手が存在しない場合はエラーとなる。
-
G(メス)は管平行めねじで、一般に計装圧力伝達系に用いられる、Rpは給水栓等に用いられる管平行めねじで常に相手のおねじはRのもの。
-
以下のIXODN,IXSDNが90の場合はその属するクラスの直進継手の接続が合致するものの片重長。IXSF=3の場合のIXODN,IXSDNは直接BG(J)FITD内の合致する重長種Codeを参照し、そのSizeW#の寸法値を取得する。94は突合せ溶接ルート間隔長でそのクラスにて設定された長さを参照する。
| 接続変化形式種類 | 入口側機能 | 出口側機能 | ISPR内 | JIS系標準 | ASME系での可変例 | 参考Manual一品表 | |||||
|---|---|---|---|---|---|---|---|---|---|---|---|
| 片重 | 対応 | 片重 | 対応 | ||||||||
| Code | 記号 | Code | 記号 | IED1 | IED2 | 長種 | 寸法列 | 長種 | 寸法列 | ||
| IDLN | IDAC | IDLN | IDAC | ||||||||
| Rc SCRD(メス) | 2753 | BZRc | 2754 | BGRc | 1624 | 1621 | 91 | 2150 | 41 | 2192 | 09-22-05-2 |
| G(メス) | 2755 | BZG | 2756 | BGG | 1622 | 0 | 107 | 2080 | User設定可 | 09-22-05-3 | |
| Rp(メス) | 2757 | BZRp | 2758 | BGRp | 1675 | 0 | 2077 | User設定可 | 09-22-05-4 | ||
| SW | 2761 | BZSW | 2762 | BGSW | 1631 | 0 | 93 | 2170 | 39 | 2193 | 09-22-05-5 |
| TS | 2771 | BZTS | 2772 | BGTS | 1626 | 0 | 92 | 2159 | 2196 | 09-22-05-6 | |
| DV | 2773 | BZDV | 2774 | BGDV | 1627 | 0 | 87 | 2160 | User設定可 | 09-22-05-7 | |
| PIS | 2775 | BZPI | 2776 | BGPI | 1697 | 0 | 68 | 2061 | User設定可 | 09-22-05-8 | |
| HA | 2787 | BZHA | 2788 | BGHA | 1644 | 0 | 117 | 2010 | User設定可 | 09-22-05-9 | |
| BW | 2791 | BZBW | 2792 | BGBW | 1632 | 0 | 1~19 | 全てクラス内で設定 | 09-22-05-10 | ||
| PE | 2797 | BZPE | 2798 | BGPE | 1629 | 0 | 93 | User設定可 | 09-22-05-11 | ||
セット部品の入力操作特性
-
セット部品本体を「削除」すると「接続変化」も削除されます。
-
セット部品本体を「移動」すると「接続変化」も同じ位置関係で移動します。
-
セット部品本体を「コピー」すると「接続変化」も同じ位置関係でコピーされます。
-
セット部品本体を「別位置」すると、「接続変化」も同じ位置関係で移動します。
-
セット部品本体を「名称変更」すると、本体は新しい部品に置き換えられ「接続変化」は削除されます。複数選択時も同様です。
-
フランジ接続タイプの部品の入出にこの接続変化を設定しますと、そこに相フランジは発生しないようになります。
-
セット部品のカラーは「セット部品カラー」となります。
-
配管サイズ変更時、「接続変化」はセット部品本体から離れないよう位置を調整します。
-
セット部品本体が、付属品、計装品で面間が変わったときにはセット部品本体から離れないように位置を調整します。
-
セット部品の「接続変化」側では別図できません。
-
V9.10では曲がり部品に接続変化設定する場合、接続形式がBW:1632以外の接続変化を選択できません。
接続変化の各種事例
接続形式のメス―オスの対応
「配管部品の移動」を参照してください。
直進部品
継手や付属品の単品で接続変化を行った事例。および、接続の表記方式。
| 本体品目 | 径違いソケット(3016) | 同径カップリング(3111) | 特殊弁(2216) | 直進安全弁(2220) | |||||
|---|---|---|---|---|---|---|---|---|---|
| 本体接続 | 接続変化 | SCRD(1621) | BZSW (09-22-05-4) | SW(1631) | BGRc (09-22-05-1) | PEc(1629) | BGRc (09-22-05-1) | 20K RF(1823) | BZBW |
| 接続形式表記 | SCRDx SW | (1621x1631) | SCRDx SW | (1621x1631) | PEcx SCRD | (1629x1621) | Sch80 BWx 20K RF | ||
| 接続表記順 | 異径継手類の場合は口径大側x小側 | 同径継手類の場合はCode値小x大 | 弁類の場合は流れ順(1次側x2次側) | 弁類の場合は流れ順 | |||||
| 本体一品表Page | 09-02-3-1 | 09-02-4-1 | 09-22-02-1 | ||||||
![]() |
![]() |
![]() |
![]() |
||||||
圧力伝達系におけるオス接続(Gm(平行ネジオス接続)(1616)含む)の部品類が追加されました。以下各種一品表参照のこと。
| 図01 特殊弁(接続Gm(オス))廻り 圧力伝達系事例 |
本体 | 本体 | 接続 |
|---|---|---|---|
| 機能 | 接続 | 変化 | |
| 品目 | 形式 | ||
| 一品表Page | |||
![]() |
PE(3079) | R(1623) | 無 |
| 圧力検出端 | |||
| 09-23-01-2 | |||
| SOC(10) | Rc(1624) | 無 | |
| 同径ソケット(3011) | |||
| 09-02-2-1 | |||
| IMSS(3149) | R(1623) |
BZGf |
|
| オス計装同径品 (V9.10追加) | |||
| 09-23-01-8 | |||
| SVLV(2216) | Gm(1616) | 無 | |
| 特殊弁 | |||
| 09-23-01-1 | |||
| IMRD(3151) | SCRE(1613) |
BGGf |
|
| オス計装異径品 (V9.10追加) | |||
| 09-23-01-9 | |||
| SSPA(2264) | SW(1631) |
BGRc |
|
| 同径付属品 | |||
| 09-22-01-1 | |||
| 図02 圧力計(接続Gm(オス))廻り 圧力伝達系事例 |
本体 | 本体 | 接続 |
|---|---|---|---|
| 機能 | 接続 | 変化 | |
| 品目 | 形式 | ||
| 一品表Page | |||
![]() |
PI(3082) | Gm(1616) | 無 |
| 圧力計 | |||
| 09-23-01-3 | |||
| SCIN(3097) | G(1622) |
BZSW |
|
| 同心計装品 | |||
| 09-23-01-4 | |||
| SYPH(3108) | PEc(1629) | 無 | |
| サイフォン管 | |||
| 09-23-01-5 | |||
| IMRD(3151) | PEc(1629) |
BGSW |
|
| オス計装異径品 (V9.10追加) | |||
| 09-23-01-9 | |||
| SVLV(2216) | SW(1631) | 無 | |
| 特殊弁 | |||
| 09-23-01-1 | |||
曲がり部品
注)以下の曲がり部品は3種ともに付属品で、口径変化が可能です。
V10.00においては、曲がり部品にBxBW以外の接続変化の設定は不可です。
| 本体品目 | 安全弁(SV,2219) | 45°エルボ付属品(A45E,2714) | 90°エルボ付属品(A90E,2718) | ||||
|---|---|---|---|---|---|---|---|
| 本体接続 | 接続変化 | 10K RF(1818) |
BZBW (09-22-05-4) |
R(1623) |
BZRc (09-22-05-1) |
R(1623) |
BZSW (09-22-05-4) |
| 接続形式表記 | Sch 80 BWx 10K RF | (1216 1632x1818) | Rcx R | (1624x1623) | SWx R | (1631x1623) | |
| 接続表記順 | 弁類の場合は流れ順(1次側x2次側) | 弁類の場合は流れ順(1次側x2次側) | 弁類の場合は流れ順(1次側x2次側) | ||||
| 本体一品表Page | 09-22-02-2 | 09-22-01-5 | 09-22-01-6 | ||||
![]() |
![]() |
![]() |
|||||
接続変化機能を使った(サニタリ)継手としての「片ヘルールエルボ」
| 本体機能 | 片ヘルールエルボ 入BW接続(ELIB,243) | 片ヘルールエルボ 出BW接続(ELOB,244) | |||
|---|---|---|---|---|---|
| 本体品目 | 片へルールエルボ(90ELBOW FRLE/BW,3297) | 同左 | |||
| 本体接続 | 接続変化 | FRLE(1635) |
BZBW (09-22-05-4) |
同左 |
BGBW (09-22-05-4) |
| 接続形式表記 | BWxFERL | (1632x1626) | 同左 | ||
| 接続表記順 | 接続Codeの昇順 | 同左 | |||
| 本体一品表Page | 09-09-2-5 | 同左 | |||
![]() |
![]() |
||||
分岐部品
| 本体機能 | 枝短ティー分岐(BSBT,313) | |
|---|---|---|
| 本体品目 | 給水栓用チーズ(HYDRANT TEES,3346) | |
| 本体接続 | TS(1626) | |
| 接続変化部入力 | 分岐配管に単独でBGRp(2758)(接続:Rp(1675)(09-22-05-4)を挿入し、このティーの分岐側端点に位置を合わせる | 接続がR(オステーパねじ)の給水栓(特殊弁(SVLV:2216))(09-22-02-1)を分岐ライン上に挿入し、上流側に直付けする |
| 接続形式表記 | TS (1625)
分岐パイプ端はR(1623) |
|
| 接続表記順 | 本体側1種 | |
| 本体一品表Page | 09-13-4-15 | |
![]() |
![]() |
|
接続変化シンボルと(口径種の異なる)クラス変更の併用による「口径種変更継手、弁類」の可能化
サニタリ関係で(自動発生の)サニタリーJIS管の口径変換ヘルールや特殊ヘルール(各種接続変化含む),PVC関係で給水栓チーズの追加が行われ既存でも「バルブソケット」(TSxR)、「給水栓ソケット」(TSxRp),(電線管)、「コネクタ」(CTGExPOS)等がダミー併用であり、また一方、他の管種の組み合わせ(JIS-ANSI,JIS-Tube,JIS-PVC)のNeedsも当然あり、以下の3件のV9.10改善項目とV9.0におけるAGSIZC-IPDJAの拡充、接続変化機能でこの機能の一般化が図れる。


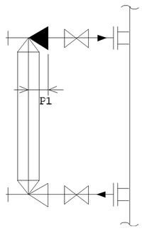
Set部品(差込接続) ユニオンB形 直進 SW-(R,SCRE)
ユニオンB形
両側の接続形式が異なる為、シンボルを本体部分とダミー部分に分けて入力をします(一品表は09-02-5-4)。
以下の片側ダミーオスネジ:R部をSetでつける本体シンボルは以下の「ユニオンB形」で説明しますが、本体側はJISB2308-2013で規定される「ユニオンU5」(09-18-2-4)でも同様です。
| ユニオンB形本体のFDNA内寸法設定 | ダミー(付属品)の寸法設定 | ||
|---|---|---|---|
| ① | 端端長:H:実物の端端長 | ① | 面間:P1:H-0.2mm |
| ② | 片重長:LP1:IDN:93,IDAC:2170 | ② | 片重長:R(SCRD) |
付属品の接続形式にSCRDを設定することで、システム内で該当差込長が採用される。

入力方法は機能Code呼び出しとします。
-
基準位置の部品として、例としてバルブをあらかじめ入力しておきます。
下図のように流れ方向が左から右への場合の入力する機能シンボルの説明を示します。
-
次にダミーネジ接続を入力し、バルブに直付します。この時接続方式をR(1623)にしておく必要があります。また、このダミーの外形寸法のP1に本体部も含めた面間寸法-0.1mmを入力設定します。

-
最後にユニオンB(本体部)を入力し、オリジンをダミーネジ接続のオリジンに対しバルブから遠い方に0.1mmずらして入力します。

Set部品(差込接続) 電線管 コネクタ直進POS-(R,SCRE)
両側の接続形式が異なる為、シンボルを本体部分とダミー部分に分けて入力をします(一品表は09-17-4-1)。

入力方法は機能Code呼び出しです。
-
基準位置の部品として、例としてノズルをあらかじめ入力しておきます。
流れ方向により入力する機能シンボルが変わりますので、それぞれで使用するシンボルを示します。

-
ダミーネジ接続を入力し、接続方式をSCRDに変更し、このダミーの外形寸法のP1に本体部も含めた面間寸法-0.1mmを入力設定します。そしてノズルに直付します。

-
最後にコネクタ(本体部)を入力し、ダミーネジのオリジンから0.1mmだけダミーから反対方向に離して入力します。

Set部品(差込接続) バルブソケット 直進 TS-(R,SCRE)
バルブソケットについては、両側の接続形式が異なるため、シンボルを本体部分とダミー部分に分けて入力をします。
-
実際のこの部品図、寸法、2Dシンボルパターンは09-13-1-6を参照してください。
バルブソケット本体の
FDNA内寸法設定ダミー(付属品)の寸法設定 ① 端端長:H:実物の端端長 ① 面間:P1:H-0.2mm ② 片重長:LP1:IDN:92,IDAC:2159 ② 片重長:R(SCRD) 付属品の接続形式にSCRDを設定することで、システム内でこのクラス内の直進継手の該当差込長が採用される。
入力方法は機能Code呼び出しです。
-
接続形式がRc(SCRD)のバルブをあらかじめ入力しておきます。
-
配管部品挿入でダミーバルブソケット(機能Code:2327/2329)を入力します。ダミーバルブソケットの接続形式をR(1623)に設定します。
ダミーバルブソケットのP1(端端長)を本体部の端端長-0.2mmに設定します。ダミーバルブソケットをバルブに直付けします。 -
配管部品挿入でバルブソケット本体部(機能Code:27/29、端端長:Hmm)のオリジンをダミーバルブソケットのオリジンに対しバルブから遠い方に0.1mmずらして入力します。
-
バルブソケットは13AxR1/2の部品がありますが、V9.10ではまだこの-1SDの寸法参照機能ありません。
-
本体に付属品のSCPA(2265)を用いることになりますが、接続変化:BxTSを使用した、このサイズ組の事例を図3に示します。
バルブソケット入力例

入力事例
図1 VS(27)+DMVS(2327)事例

図2 VSR(29)+DMVR(2329)の事例

図3 付属品のSCPA(2265)に接続変化:BZTSを使用した事例

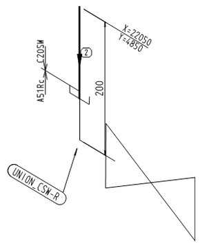
Set部品(差込接続) ユニオンC形 曲がり SW-(R,SCRE)
一品表は09-03-2-4。
| ユニオンC形本体の FDNA内寸法設定 |
DSEC | 2357 | DSCR | 2358 | ||
|---|---|---|---|---|---|---|
| ① | 端端長:H:実物の端端長 | ① | 面間:P1:H+0.1mm | 面間:P3:ダミー部のP3の寸法 | ||
| ② | 片重長:LP1:IDN:93,IDAC:2170 | ② | 外径:P3:ダミー部のP3の寸法 | 外径:P1:H+0.1mm | ||
| ③ |
片重長:R(SCRD) 付属品の接続形式にSCRDを設定することで、システム内で該当差込長が採用される。 注)V8時点では、本来このダミーはRであるが、モデルの接続としてはSCRDで設定しないと、ねじ差込寸法が拾われない。 |
|||||

ユニオンC形-同径入力例
-
曲がりラインを入力します。

-
エルボを選択し名称をダミーネジ曲接続に、接続をSCRDに変更します。
ダミーの外形寸法P1に本体部の面間寸法L+0.1mmを、また、P3にダミー側面間寸法L1を入力します。
-
バルブを入力しダミーに直付します。

バルブに対して反対側は反転ダミー:2358を入力
注意
-
流れ方向が逆の時はダミーのP1,P3の面間寸法も逆に入力します。
-
-
ユニオンC形本体を入力しダミーに直付します。

注意
-
同径ラインで流れ方向が逆の場合は「同径反転」シンボルを使用します。異径の場合は流れ方向により本体シンボルを入替える必要はありません。
-
Set部品(差込接続) 給水栓ソケット 直進 給水栓エルボ 曲がり TS-(Rp,SCRD)
給水栓ソケットについて
給水栓ソケットについては、両側の接続形式が異なるため、シンボルを本体部分とダミー部分に分けて入力をします。
-
実際のこの部品図、寸法、2Dシンボルパターンは09-13-1-5を参照してください。
-
この給水栓ソケットについては、流れ方向は一般に給水栓側が下流となるので、KSR,DMKRの反転のシンボルは使用されません。
Rpねじ、PJねじについて
-
Rpねじ : 管用テーパねじの規格内に分類される平行メスねじ。Gとはわずかに違う。RかPJと組み合わせて使用する。
-
PJねじ : 給水専用オスねじ。ねじの差込長の調整ができる。組み合わせはRpねじと行う。ゆえに、給水栓のねじはPJねじ指定で行う。
入力方法
入力方法は機能Code呼び出しです。
| 給水栓ソケット本体のFDNA内寸法設定 | ダミー(付属品)の寸法設定 | ||||||
|---|---|---|---|---|---|---|---|
| ① | 端端長:H:実物の端端長 | ① | 面間:P1:H-0.2mm | V9.0において、ダミー給水栓ソケット:DMKS:2328、とその(反転):DMKR:2330のシンボルの片重長参照Flagを右のように変更した。この変更により、IDAC:2077を参照し、Rpの片重長(20Aで19、25Aで21mm)の食い込みがなされます。V9.0未満のJobでも、A(B)JISPR内のFlagを同様に変更することにより、同様の片重長となります。 | IXODN | IXSF | IXSDN |
| ② | 片重長:LP1:IDN:92,IDAC:2159 | ② | 片重長:Rp | 61 | 3 | 77 | |
平面パターン表現
つまり、本体とダミーは、パターン図形としてはオリジン(中心)から左半分、右半分の図形だが、たがいに、オリジンに対し反対側に同じパターン長の仮想の図形を持っているとして、IXSCLの値はそれぞれの片側のパターン長の2倍の値を持つ。

入力事例
下図のように、AB(J)ISPR内のこのMNC:DMKSのNDEP=0に設定することにより、DMKSからの寸法引き出しがなくなり、このオス形SVLVの面間(この事例では120㎜)がスプール上に明確に表示できます。

また、下図は給水栓(水道蛇口)のように、下流先に曲がりダミーのDSCR(2358)を直付けさせた事例です。

給水栓エルボについて
給水栓エルボについては、両側の接続形式が異なるため、シンボルを本体部分とダミー部分に分けて入力をします。
-
実際のこの部品図、寸法、2Dシンボルパターンは09-13-3-15を参照してください。
-
この給水栓エルボについては、流れ方向は一般に給水栓側が下流となるので、下記の反転のシンボル(GrayOut)は使用されません。
本体部:継手類
| 給水栓エルボ本体のFDNA内寸法設定 | ダミー(付属品)の寸法設定 | ||
|---|---|---|---|
| ① | 中前端長:CFE | ① | 面間:P1 90IS で CFE |
| ② | 中後端長:CBE | ② | 面間:P1 90OS で CBE |
| ③ | 片重長TS:IDN:92,IDAC:2159 | ③ | 片重長については前記と同様 |
消火栓(片FLG-片オス平行ねじ)の入力事例
シンボルの組み合わせや 各使用部品については「09-22-04-1」「09-22-05-2」「09-22-01-8」を参照。
-
付属ボール弁(FLG)に-BGGfを噛まして-DSER(Gm)(2356)(V9.10にてGm接続追加)-ACAP(G)(V9.10にて追加)
-
付属ボール弁(FLG)に-BGGfを噛まして、下流側の相FLGの発生をなくし、DSER(Gm)(シンボルパターンとしては片側だけだが、反対側の対称のパターン部を仮想的に持つ)の対称の仮想部をボール弁側にGm分の長さだけ喰い込ませる。
-
付属ボール弁出側のDSERのGmねじ部にACAP(Gf)(材集無、消火栓に付属する保護CAP)をかぶせる。

直進フランジ変化 異径フランジ使用法
一般に異径フランジは、大きく以下の2つのタイプがあります。
-
閉止フランジを穴開け加工し、Slip-On接続で使用する(同心と偏心の2つのタイプがあります)。
-
Weld-Neck接続タイプのものを機械加工製作使用する(同心タイプのみ)。この場合、フランジのガスケット当り面からWeld-Neckの先端までの長さ、およびフランジ径、厚み、ボルト径、本数は大口径側のサイズの寸法となります。
-
以下にこの異径フランジによるサイズ変更に関係するシンボル属性を示します。
ISPR内寸法制御 機能 材集表記 FDNA内定義 IF 接続形式 IS IX NW IFSI 将来 一品表 (機能)
品目名称Code 記号 IBMC IPTM IBMC FLW NED iEDF iEDT FLG IXODN SF IXFLG IYON DP I3DC IPTN IFSIZ ISETC Page 同心異径フランジ 136 SCFL 3426 3420 3420 11 100 1649 1661 10 141 0 123 126 1 12301 401 1 20410 09-07-12-1 偏心異径フランジ 138 SEFL 3428 3420 3420 12 100 1651 1661 10 141 0 123 119 1 12301 401 1 20410 09-07-12-1 (同心異径)キャップ 95 SCAP 3410 3410 11 1 1632 0 113 0 131 126 2 12315 901 1 20410 09-02-6-3 (直進)ボス 112 SBOS 3360 3360 11 100 1671 1692 0 112 1 90 126 2 12310 403 0 21410 09-02-6-4 同心異径フランジ-WN 137 SCWF 3426 3120 3120 11 100 1750 1758 10 161 2 94 126 1 12302 400 1 00000 09-07-12-2 異径フランジA (GL用) 2268 REGA 2268 11 100 1812 1868 20 61 0 0 169 0 12340 966 1 00000 09-15-2-6 異径フランジB (GL用) 2269 REGB 2269 11 100 1651 1661 20 61 0 0 169 0 12340 967 1 00000 09-15-2-6 -
同心、偏心の異径フランジ(板タイプ)については、閉止フランジを加工して製作するため、IPTM:IBMC:3420の「閉止フランジ」の該当するIRT-IED-IBSのFDNAを参照して寸法を取得します。
一方、同心異径フランジ -WNタイプについては、高さ、厚さ、Bolt穴、PCD等の情報をIPTM:IBMC:3120の「フランジ」の該当するIRT-IED-IBSのFDNAを参照して寸法を取得します。材料表記用IBMCへの読み替えは14-04-2-x参照。
また、同心異径フランジ-Liningはウェーハタイプ:IFWFR:1で、現状、ISPR内のみにあり、FDNA内には定義がありません。これと同様な形状は付属品としてISPR内にMNC:REGA:異径フランジA、REGB:異径フランジBとしてシンボル定義され使用可能です。09-15-2-6参照
閉止フランジからボスを取付けラインを取り合う場合(図2)の入力方法について

図1のようにライン中に偏心異径フランジ変化を入力し、直進ボスを偏心異径フランジに直付させます。
-
「偏心異径フランジ」:SEFL:138を入力
-
出口側サイズを指定(3/4B)
-
「直進ボス」(SBOS:112)を入力
-
FLG-GSK面からSBOS端面を、抜き代:3mm (内側ビード余盛分)まで喰いませる (詳細形状は09-07-12-1)
同心フランジ変化を小口径側の組フランジにする方法
通常入力では同心フランジ変化は大口径側のフランジサイズとなります。
これを小口径側のフランジサイズにする方法を説明します。
-
サイズ変更位置の上流側に同心付属品(20Ax15A)を入力します。
※タグNo.や注記を入力するとスプール図上で加工が必要なことを表現出来ます。
-
同心付属品のプロパティの「材集On/Off変化位置」で材集をOffに設定します。
-
サイズ変更位置に組フランジを入力します。
-
手順2で入力した同心付属品を組フランジと重なるように移動します。
※同心付属品の面間、位置は個別に調整する必要があります。
-
組フランジでクラス変更を設定します。
※20A側の加工するフランジはクラスの注記で設定することで、材料集計を分ける事が可能です。
注意
-
異径フランジで別図処理を行うと、組図で下流側の配管が消えてしまう等の不具合が発生する場合があります。異径フランジで別図処理は行わないでください。
-
同心異径フランジ、偏心異径フランジの小径側にはフランジタイプ部品を直付けしないで下さい。閉止フランジを加工して使う部品なので施工できず、m3dv(組図)で配管が欠落する場合があります。
直進フランジ変化 異径フランジ使用法 事例
3種の異径フランジの参照PMS内名称とスプール図表現、材料欄内集計内容
| 機能 | 材集表記 | FDNA内定義 | |||
|---|---|---|---|---|---|
| (機能)品目名称 | Code | 記号 | IBMC | IPTM | IBMC |
| 同心異径フランジ | 136 | SCFL | 3426 | 3420 | 3420 |
-
Spool図表現

-
Spool図材料欄

-
PMS内容
SCFLとSEFLは同一クラスで「閉止フランジ」の行仕様を参照します。

| 機能 | 材集表記 | FDNA内定義 | |||
|---|---|---|---|---|---|
| (機能)品目名称 | Code | 記号 | IBMC | IPTM | IBMC |
| 偏心異径フランジ | 138 | SEFL | 3428 | 3420 | 3420 |
-
Spool図表現

-
Spool図材料欄

| 機能 | 材集表記 | FDNA内定義 | |||
|---|---|---|---|---|---|
| (機能)品目名称 | Code | 記号 | IBMC | IPTM | IBMC |
| 同心異径フランジ-WN | 137 | SCWF | 3426 | 3120 | 3120 |
-
Spool図表現

-
PMS内容
SCWFはクラス内の「フランジ」の行仕様を参照します。

分岐ライン側に分岐シンボルをもたせる入力 配管部品
既設の母管に新設の分岐コネクトシンボルを入力設定する等、分岐ライン側に分岐シンボルをもたせる時には、以下の部品を入力します。
-
母管側分岐ポイントとして分岐表から呼んできた分岐コネクトシンボルを IBC=345 MNC=BDPF に名称変更します。(ただし、BOSS(T)-Fの時に限り、IBC=337 MNC=BDFF に変更します)
-
EBOS,EBST,EBOL は分岐側ラインに入力し、分岐ポイントに直付します。
-
EBT はラインの先端に入力します。
-
このシンボルは配管スタートポイントにのみ使用可能です。(EBT はエンドポイントも可)EBOS,EBST,EBOL の接続はxxx-F のみとします。
-
配管エンドポイント用、分岐側ボスを追加(EBSE)
| 母管側 | 分岐側 | ||||
|---|---|---|---|---|---|
| IBC | MNC | IBC | MNC | 名称 | |
| 345 | BDPF | ![]() |
402 | EBOS | 分岐側ボス |
| 345 | BDPF | ![]() |
405 | EBST | 分岐側ボス(T) |
| 345 | BDPF | ![]() |
407 | EBOL | 分岐側アウトレット |
| 345 | BDPF | ![]() |
407 | EBOL | 分岐側アウトレット |
| 337br (BOSS(T)-Fの時) |
BDFF | ![]() |
405 | EBST | 分岐側ボス(T) |
![]() |
460 | EBT | ティー止め | ||
![]() |
460 | EBT | ティー止め | ||
| 345 | BDPF | ![]() |
403 | EBSE | 分岐側ボス(配管エンドポイント用) |
入出接続形式変化部品 BW-FL'G 90゜安全弁 配管付属品
入口側BW、出口側FL'Gの安全弁入力
各シンボルのパラメータは次のとおりとする。

| 名称 | 終点安全弁 | ダミーバルブ |
|---|---|---|
| IBC | 2332 | 2325 |
| MNC | ESV | DMV |
| 接続形式 | BW | FL'G |
| ISFLG | 0 | 10 |
| NWDP | 1 | 0 |
| 材集 | 有 | 無 |
配管ラインの入力は、入口側と出口側を別ラインとする。

-
入口側のライン☆aを入力する。
-
出口側のライン☆bを別ラインで入力する。
-
☆aのラインの先端に、終点安全弁(機能Code呼出し)を入力する。接続はBWとする。
-
☆bのラインの始点側先端に、ダミーバルブ(機能Code呼出し)を入力し、位置数値で面間(P1)分移動させる。
安全弁入口のインサートノズルの入力とボルト長
-
入口にノズルがついているタイプの安全弁の入口側には「インサートノズル」のシンボル(機能記号:INZL,機能Code:2313)を入力します。
-
このインサートノズルの面間長はシステムの都合上P1=(t(実厚)-ガスケット厚)とします。
-
パラメータ設定後、安全弁に直付します。
インサートノズルを入力することにより、ボルト長がt寸法分長く計算出力されます。

ライン途中での別図処理方法 特殊配管入力例
既設改造等のラインで、ライン途中にフランジを切込み新設ラインを接続させる時に、組フランジ、ガスケット、ボルト・ナットを材料集計させたい場合の入力方法について、PMS:A10、100A配管を使用した事例を示します。
-
組フランジの既設ライン側を二次選択します。

-
配管(L)メニューより別図選択します。(右Clickメニューには別図コマンドはありません)

-
別図にするポイントを組フランジに近い側でヒットします。
-
基準点がフランジにある場合は次のステップに、基準点がフランジに無い場合は「基準点変更」にてフランジに基準点が来る様に設定します。
-
基準点から別図処理する位置を設定します。
メニューより「基準点面押え」を選択してください。
この基準点設定でフランジの面からの距離指定が出来るようになります。
-
別図処理する位置数値を設定します。
この場合はフランジまで新設側なので、数値はフランジのスペース長を入力してください。
この時、組フランジ側にスペース長を表示しますが材集は行いません。
また、相手側は実長となります。※ スペース長とはフランジの形式により、
- PMSに定義した、SO抜代 = 全サイズ肉厚 + 指定寸法mm
- 部品・一般弁寸法列編集(EditDimension)にて定義した値
の2種類あります。詳細は14-03-6-1を参照願います。 (今回の事例では(1)のPMSに定義したスペース長です。)
-
「OK」で終了します。
スプール図の事例を以下に示します。
※画像を選択すると拡大表示します。
母管からの芯ズレ分岐 特殊配管入力例
下記図例のように母管から芯ズレ分岐する場合は、最初に母管の中心から分岐管の中心までの相対距離を算出します。

操作方法
-
母管を2次選択→配管メニューの「分岐」で分岐位置を決定。
-
相対座標でX=60、Z=-90を指定(配管を単線表示にすると分かりやすい)
-
ラインプロパティでサイズ=25Aを指定
-
成長モードに入り、相対X座標で仮の長さX=1000を指定(ここからは自由)
-
曲り部に発生したエルボを2次選択→メニューの「曲りポイントにベンド設定」→「切り合わせ曲げ」→「OK」する。

注意
-
実際のカットパイプ長は1000より長くなりますので、このカットパイプは余長を含んだ現合パイプ(FF)に設定する必要があります。
入出接続形式変化部品 片BWボ-ル弁
片BW・片FL'Gのボ-ル弁(ギヤタイプ)入力
(一般弁)
| 名称 | IBC | MNC | 接続形式 | アクチュエータ方向 | ISFLG | NWDP | 材集 |
|---|---|---|---|---|---|---|---|
| 片BWボ-ル弁 | 2135 | BAWF | BW-FLG | 入力方向90゜右向き | 0 | 1 | 有 |
| 片BWボ-ル弁 | 2135 | BAWF | BW-FLG | 入力方向90゜左向き | 0 | 1 | 有 |
| ダミ-バルブ | 2325 | DMV | FL'G | 10 | 0 | 無 |

-
スペックに一般弁として登録する必要があります。
バルブCodeは 12660(150#)、12780(300#)ギヤタイプとなっています。
面間・ハンドル高さ・ハンドル径はBJFITDを修正します。
注意
-
面間の寸法列は、面間×0.5の寸法が登録されています。
-
-
入力方法は機能Code呼出しとします。
-
ダミ-バルブと片BWボ-ル弁それぞれの面間は半分ずつとします。ラインは別ラインとして入力します。

-
☆aのラインの先端にダミ-バルブ(機能Code呼出し)を入力し、外形寸法(P1=面間/2)を設定してノズルに直付します。

-
☆bのラインの始点側先端に片BWボ-ル弁(機能Code呼出し)を入力します。

-
-
ライン中に入力する場合も同様です。
-
別ラインとして入力し、☆aのラインの先端にダミ-バルブを入力します。

-
☆bのラインの始点側先端に片BWボ-ル弁を入力します。

(計装品)
名称 IBC MNC 接続形式 アクチュエータ方向 ISFLG NWDP 材集 片BWボ-ル弁 3132 BWFV BW 入力方向90゜右向き 0 1 有 片BWボ-ル弁 3132 BWFV BW 入力方向90゜右向き 0 1 有 ダミ-バルブ 3126 DMIV FL'G 10 0 無 -
-
入力方法は同様です。
注意
-
但し、片BWボ-ル弁は入力時スカイブル-で表示されますので接続形式をBWに変更して下さい。
-
外形寸法にて寸法を設定します。

-
フランジを加工してサイズの違う配管を接続する事例
10Aのフランジを加工して20Aの配管を接続する事例
-
10Aの組フランジを入力後、同心付属品を入力し下流側を20Aとします。

-
同心付属品の面間を0.1mmとし、接続形式をSCRDとします。

-
組フランジと同心配管付属品の距離を0とします。

-
同心配管付属品を2次選択し、材集On/Off変化位置をフランジ前後とします。

スプール図を以下に示します。
※画像を選択すると拡大表示します。
90°Y形付属品の入力 Y形弁の駆動部方向指定 ライニング部品の枝付き管の入力事例
90°Y形付属品の使用方法
90°Y形付属品はダミーと組合せて使用します。
| 品目名称 | IPTM=IBMC=IBC | MNC | 接続形式 | 材集 | 品目名称 | IPTM=IBMC=IBC | MNC | 接続形式 | 材集 |
|---|---|---|---|---|---|---|---|---|---|
| 90°Y形付属品 | 2273 | 90YA | FL'G BW SCRD | 有 | 前後短ティー | 2366 | FRST | FRLE | 有 |
| ダミー90分岐付属品 | 2333 | DM9Y | FL'G BW SCRD | 無 | ダミー前後短T付属品 | 2367 | DFRT | FRLE | 無 |
| Y形付属品 | 2278 | 45YA | FL'G BW SCRD | 有 | 前後短L.N.T | 2368 | FRLT | FRLE | 有 |
| ダミー45分岐付属品 | 2334 | D45Y | FL'G BW SCRD | 無 | ダミー前後短LNT付属品 | 2369 | DFLT | FRLE | 無 |
-
入力方法は機能Code呼出しです。
-
直進ラインに90°Y形付属品を入力します。

-
分岐ラインを入力します。

-
分岐ライン入力時に発生した分岐シンボル(Tee,Boss,etc)を名称変更でダミー90分岐付属品に変更します。

-
-
ダミー90分岐付属品のパラメータは以下の通りです。

No. 寸法内容 P1 分岐パイプ外径 P3 A 寸法-母管外径/2 -
名称はUserにおいてAJITEM.csvで変更して下さい。
"枝付き管"の入力事例
上記の方法を応用し入力したライニング部品の"枝付き管"の入力事例を示します。
-
母管には同径付属品(2264)を入力、TagNo.に"枝付き管"を入力、接続形式を"WAFER(1801)"にします。
-
パラメータはP1が面間、3D形状をの見栄えをよくするのであればP2も設定します。(適当な値を入れてください。)
-
注記に母管サイズ×分岐サイズを記載してください。
-
分岐配管を任意な位置に追加、分岐部品を名称変更で、付属品の"ダミー90°分岐部品"、接続形式を"FLANGE"にします。
-
パラメータはP1が分岐配管サイズ径、P3に面間(分岐面間-母管サイズ/2)とします。
-
3D形状をの見栄えをよくするのであればP2も設定します。
-
分岐配管を同径付属品(2264)へ移動します。中心から中心までを"0.04"とします。

上記の設定をしたスプール図は以下のようになります。


配管付属品で入力しているので、継手としては材集されません。
分岐部品ではないので図面内、材料欄にはTEEのような母管サイズ×分岐サイズ表記はされません。
ただし、注記に母管サイズ×分岐サイズを記載していますので、図面では配管付属品タグの下に注記で入力したサイズが表記されます。
Y形弁の駆動部方向指定
Y形弁は入力時スカイブルーで表示されますので、駆動部方向を指定してください。
| 駆動部方向 | 入力方向同向き | 入力方向逆向き | ||||
|---|---|---|---|---|---|---|
| IACT | 3 | 4 | ||||
| 接続形式 | FL'G | SCRD,SW | BW | FL'G | SCRD,SW | BW |
| シンボル形状 | ![]() |
![]() |
![]() |
![]() |
![]() |
![]() |
L型、Y型ストレーナの濾し網抜出部方向、形状選択
L型ストレーナのスクリーン取出方向
L型ストレーナのスクリーン取出方向は、アクチュエータ方向で指定します。
| アクチュエータ方向 | 入力方向90°右向き 又はアクチュエータ解除 |
入力方向同向き | ||
|---|---|---|---|---|
| IACT | 1 | 3 | ||
| 接続形式 | FL'G | BW | FL'G | BW |
| シンボル形状 | ![]() |
![]() |
![]() |
![]() |
Y型ストレーナのスクリーン抜出部タイプ選択
フランジ接続タイプのY型ストレーナのスクリーン抜出部の形状は、mroutのプロパティ画面で"フランジ"と"ネジ"のタイプが選択切替可能です。
| スクリーン抜出部形状 | フランジ | ネジ |
|---|---|---|
| シンボル形状 | ![]() |
![]() |

ダイバータ弁 配管付属品・計装弁
-
付属品のメニューからダイバータ弁(2210:DV.V)を入力し、プロパティでP1,P3を指定します。

-
分岐側フランジ面のXYZ座標を計算で求め、配管を新規作成で45°に引きます。

-
配管部品挿入 → 別図フランジを取り合い末端に入力します。

-
分岐ラインはダイバータ弁と接続していないので、スプール図の矢羽は手書きするか、分岐ラインを母管と同じスプール図にします。
-
シンボルは45°ひとつだけなので任意の角度は配管で決定します。角度によってはズレが発生します。

ビクトリックジョイントの入力
ビクトリックジョイントとは
主に水輸送用配管の直進接続で軸変化(地盤沈下、地震などでの)変位可能な接続継手です。

入力できるビクトリックジョイントの形式
| S-1 型 各部品名称 | ||||||||
|---|---|---|---|---|---|---|---|---|
| 属性名称 | Code | クランプ | ショルダカラ | ショルダネック | 各部品、形状詳細 | |||
| 標準クラス | C53a,C53b | C53a | C53b | 09-09-5-x | ||||
| PMS 名称 | IPTM | ガスケット | 3430 | ショルダカラー | 3029 | ネック/ニップル | 3032 | |
| 品目名 | IBMC | クランプ | 3070 | ショルダカラー | 3029 | ネック/ニップル | 3032 | |
| 機能名 | IBC | クランプ接続 | 70 | 単体ヘルール | 51 | 単体ヘルール | 51 | |
| MNC | CLAM | FERL | FERL | |||||
| 接続 | IED | CLP J. | 1703 | SW | 1631 | BW | 1632 | |
| 呼び圧,厚さ | IRT | S-1 | 1146 | S-1 | 1146 | S-1 | 1146 | |
| 規格 | IBS | VICTAULIC | 917 | VICTAULIC | 917 | VICTAULIC | 917 | |
| 備考 | 元クランプ | 元ヘルール | 元ヘルール | |||||
| G-1 型 各部品名称 | ||||||||
|---|---|---|---|---|---|---|---|---|
| 属性名称 | Code | ロール加工 | クランプ | グループニップル | 各部品、形状詳細 | |||
| 標準クラス | C54a | C54b | C54b | 09-09-5-x | ||||
| PMS 名称 | IPTM | V ジョイントR加工 | 3038 | ガスケット | 3430 | ネック/ニップル | 3032 | |
| 品目名 | IBMC | V ジョイントR加工 | 3038 | クランプ | 3070 | ネック/ニップル | 3032 | |
| 機能名 | IBC | ユニオン接続 | 60 | クランプ接続 | 70 | 単体ヘルール | 51 | |
| MNC | UNI | CLAM | FERL | |||||
| 接続 | IED | LS | 1609 | CLP J. | 1703 | BW | 1632 | |
| 呼び圧,厚さ | IRT | G-1 | 1147 | G-1 | 1147 | G-1 | 1147 | |
| 規格 | IBS | VICTAULIC | 917 | VICTAULIC | 917 | VICTAULIC | 917 | |
| 備考 | 元ユニオン | 元クランプ | 元ヘルール | |||||
2D シンボル表示と入力
S-1(ショルダカラ)

S-1、G-1(ネック/ニップル)

G-1(V ジョイントR 加工)

入力時の注意事項
本ビクトリックジョイントは、配管同士を接続する時に使用する目的で開発したもので、配管とバルブ、配管と配管付属品(ストレーナetc)を継ぐ時、ステップタイプクラスにて別クラスを指定ください。

F型オートバルブの入力方法 計装品
(ダミーノズル(ダミーバルブ)を使用するシンボルの入力方法)
| 本体 | 機能Code | 機能記号 | 接続形式 | ISFLG | NWDP | 材集 | ダミー付属品 | 機能Code | 機能記号 | 接続形式 | ISFLG | NWDP | 材集 | |
|---|---|---|---|---|---|---|---|---|---|---|---|---|---|---|
| U型 | U型ロータメータ | 3089 | UROT | FL'G | 20 | 0 | 有 | ダミーノズル | 3090 | DNZI | FL'G | 20 | 0 | 無 |
| U型ロータメータ | 3089 | UROT | SCRD、SW | 0 | 2 | 有 | ダミーノズル | 3090 | DNZI | SCRD、SW | 0 | 2 | 無 | |
| U型レベル計 | 3091 | ULI | FL'G | 20 | 0 | 有 | ダミーノズル | 3090 | DNZI | FL'G | 20 | 0 | 無 | |
| レベルゲージ | 3093 | ULG | FL'G | 20 | 0 | 有 | ダミー半バルブ | 3094 | DHVL | FL'G | 20 | 0 | 無 | |
| レベルゲージ | 3093 | ULG | SCRD、SW | 0 | 1 | 有 | ダミー半バルブ | 3094 | DHVL | SCRD、SW | 0 | 1 | 無 | |
| F型 | F型オートバルブ | 3124 | F.AV | FL'G | 20 | 0 | 有 | ダミーF型バルブ | 3125 | DMFV | FL'G | 20 | 0 | 無 |
| F型オートバルブ | 3124 | F.AV | SCRD、SW | 0 | 3 | 有 | ダミーF型バルブ | 3125 | DMFV | SCRD、SW | 0 | 2 | 無 | |
| F型オートバルブ(反転) | 3128 | FAVR | FL'G | 20 | 0 | 有 | ダミーF型バルブ(反転) | 3129 | DMFA | FL'G | 20 | 0 | 無 |
U型シンボルの入力方法
| 1. | 2. | 3. |
|---|---|---|
![]() |
![]() |
![]() |
| ラインを入力する。 | 流れ方向に対して手前側のエルボの所に本体を入力する。 | 流れ方向に対して後ろ側のエルボの所にダミーノズルを入力する。 |
F型オートバルブの入力方法
| 1. | ![]() |
メインラインは、入口側から上部出口側とする。 |
|---|---|---|
| 2. | ![]() |
下部出口側に分岐ラインを入力する。 |
| 3. | ![]() |
ティーが発生している部分に、F型オートバルブ(機能Code:3124)を入力する。 パラメータは、左図の通り設定する。 |
| 4. | ![]() |
エルボが発生している部分(上部出口側)にダミーF型バルブ(機能Code:3125)を入力する。 パラメータは、左図の通り設定する。 |
流れ方向が逆の場合はF型オートバルブ(機能Code:3128)、ダミーF型バルブ(機能Code:3129)を入力します。
外形寸法についての制約条件
-
全ての配管付属品、計装品の外形寸法 P1~P5の値は1.0mm~32,767mmの範囲で設定されます。
もし、P1~P5の値が3,276mm以上の時は、小数点以下の入力は不可です。
整数値で入力して下さい。
-
これ以上の寸法の部品を入力したい場合は、ダミーノズルや同心付属品等を組み合わせて形状を作成して下さい。
機能Code 機能記号 接続形式 ISFLG NWDP 材集 ダミーノズル 付属品用 2312 DNZP FL'G 20 0 無 ダミーノズル 計装用 3090 DNZI FL'G 20 0 無 ダミーノズルは材料集計されません。
-
P1~P5までパラメータが最大で5つ設定できますが、この中でUserが常に任意に設定できるものはP1(外長、面間)のみで、P2~P5は各シンボルにより任意に設定できるものとできないものがあります。
一般にその個々のシンボルにおいて、接続する配管の外径や、フランジ外径等に合致すべきパラメータについては、自動的にその配管のSizeとクラスにより設定されます。
F型オートバルブの事例 計装品
レベルゲージ入力例 計装品
ラインを入力する
ラインを入力します。
-
流れ方向に対して手前側のエルボの部分に本体を入力します。

-
レベル計のパラメ-タを設定し、タグNo.を入力します。

-
流れ方向に対して後ろ側のエルボの部分にダミ-半バルブを入力します。
-
パラメ-タを設定します。

-
配管の線分移動でバルブに直付けをします。

ドレンバルブを追加する
以下の手順で別のラインとして入力します。
-
配管新規作成コマンドでラインプロのパティを設定しOKボタンをクリックします。
-
ポイントの追加ダイアログの合わせタブで下側の部品(上記の例ではレベルゲージ)を選択します。
-
移動点位置指定の曲りの箇所を選択し決定ボタンをクリックします。
-
次のポイントを入力し下方向に配管を入力します。
-
配管部品挿入コマンドで付属ノズル(機能Code:2380)を入力します。
-
付属ノズルを二次選択し、移動コマンドで座標位置を調整します。
-
バルブを入力します。
個別に手配しない等、材料集計のOn/OFFの設定が必要であれば行います。(「配管途中材集設定」を参照) -
ベントを入力の場合は上記手順 2)のところで上側の部品(上記の例ではダミー半バルブ)を選択し同様に作業を進めます。

温度計、温度検出端 計装品
温度計、温度検出端の本体部分の1.2倍固定で調節がしにくかったソフトボリュームをV7.00より新たに寸法パラメータP5として設定し、引抜代を自由にUserカスタマイズを可能としました。
また、実形状に近い形の3Dシンボルに変更するためパラメータP1~P5の定義を見直しました。
合わせて以下の不具合修正と改良を行いました。
-
旧パラメータP3入力値が反映されない
-
相フランジ旧P2のサイズが自動追随しない-毎回入力が必要→接続配管のフランジ径に自動で変わるようにする
-
首振り型の温度計に対応→モデリング画面でアクチュエータ方向フラグを1とすると計器面が90度倒れます。


mroutのプロパティのアクチュエータ方向を0:方向設定なしから1:流れ方向に対し右90度 に変更することにより計器表示面を上面から側面へ首振りが可能。
面方向は ハンドル角度の変更で360度自由な方向に設定可能
注意
-
本改造により温度計、温度検出端を使用しているJobでは下記のエラーが表示されmroutが強制終了する場合があります。
AB(G)PSM3にソフトボリュームの3DシンボルパラメータP5を増やしたためです。
Lu内にA(B)JISPRが存在し、A(B)JPSM3が存在しない(=A(B)GPSM3を参照している場合)等に発生します。
その為、LuのJobverup実行時に自動でA(B)JISPRにD.B.の変更をコンバートするプログラム改造を行っています。
問題発生を抑えるため、出来るだけ変更点が反映された後のA(B)G(J)PSM3とA(B)G(J)ISPRのペアでの使用をお願いします。


本改造により、既にモデリング済みの既存の温度計、温度検出端のシンボル形状が崩れる場合があります。
パラメータP1~P5の定義を実形状に近くするため見直したためです。
シンボルの寸法パラメータを1つ1つ変更していくのが手間がかかり大変な場合、計装品Dataのバッチ変換:APADを使用することにより一括返還が可能です。

APADを出力し、タグNo.や機能記号などで該当シンボルを絞り込み、P1~P5を再設定します。

※ 温度計と温度検出端は同じ3Dシンボルを使用しています。
初期入力は温度計の寸法値を登録してありますので検出端を配置後に使用する検出端の寸法を設定してください。
この場合もAPADによる一括入力が可能です。
-
フレキチューブ段差(偏心フレキ)の入力
-
段差をつけてラインを入力します。

-
流れ方向に対して下流側のエルボの所に フレキチューブ段差 2274:ECFX を入力します。

-
流れ方向に対して上流側のエルボの所にダミ-フレキ 2318:DMFX を入力します。

ダミ-フレキのパラメ-タ(P1.P3)は、フレキチューブ段差のパラメ-タとは逆になりますので寸法入力の際、注意してください。
フレキシブルホース 配管付属品
概要
3Dモデル入力(mrout)のホース入力機能にてホースのスタート(FXST)、エンド(FXED)点、およびその中継点(FXCP)を指定することで任意の形状のホースを入力できます。
ホースの入力方法
ホース入力には二通りの方法があります。
各ポイントごとにホース入力を行う方法(従来方式)
-
ホースを入力したい配管を一次選択状態にします。
-
ライン途中にFXST:2294:フレキシブルホース始点を入力します。
接続形式の設定をします。(フランジ、カプラ、SCRD) -
配管を[ライン成長]モードにします。
メニューバーの〔配管(L)〕-〔成長〕または、右クリックでメニューを呼び出し、〔成長〕を選択します。 -
[ライン成長]モードに入り、【ポイントの追加】ダイアログが表示されます。
-
[ホース入力]モードに入ります。
【ポイントの追加】ダイアログの「曲り種類」を「ホース」にします。

-
ホースを成長させます。
ホースの曲がり点を入力していきます。 -
[ホース入力]モードを終了します。
【ポイントの追加】ダイアログの「曲り種類」を「ホース」以外にします。注意
-
従来はホース始点まで後退してからホース曲り点を入力する必要があったが、V6.80より空中開口からも成長可能としました。
-
一括入力方式
-
通常の配管入力でラインを入力します。
-
フレキシブルホースを入力したい部分の始点に、FXST:2294を入力、終点に ホース終点:FXED:2295を入力します。
自動的に始点・終点間がフレキシブルホースに変換されます。 -
接続形式の設定をします。(フランジ、カプラ、SCRD)
ホースの機能名称・記号・Code一覧
| No. | 機能名称 | 機能記号 | 機能Code |
|---|---|---|---|
| 1 | フレキシブルホース | FXST | 2294 |
| 2 | ホース曲点 | FXCP | 490 |
| 3 | ホース終点 | FXED | 2295 |

フレキシブルホースに使用可能な接続形式一覧
| No. | 接続形式 | 機能Code |
|---|---|---|
| 1 | SCRD | 1621 |
| 2 | COUPLR | 1625 |
| 3 | フランジ | 1651-1660、1814-1867、1873-1886 |
| 4 | LJ | 1701 |
| 5 | クランプ | 1887~1890、1897 |
各Codeに該当する接続形式名称は05-06-x-xを参照してください。
注意
-
ノズル等への直付は現在未対応で差込み代、フランジ間隔、等の寸法値が合いません。位置数値入力により必要な数値の設定をお願いします。
-
入力画面でのシンボルプロパティ:P1 (外長)はシンボル自体の外長です。この長さを変更してもホース長さは変化しません。
モデル化について
コンピュータ上で自由曲線を表現する際に必要な曲線補間にはいつくかの方法があるが、EYECADでは与えられた点列に対して、2点間を曲率半径の異なる2点の円弧で次々につなぎ合わせる方法を採用しています。
構成が単純な割には、外見上の不自然さが少なく、曲線の長さの計算も単純であり、点列が正多角形上の頂点であれば円を誤差無しで近似できることに特徴があります。
表現方法
-
P1, P2, ・・・, Pnをn個の点列とする。
ただし、連続する3点は同一直線上には無いと仮定する。
3D入力画面(mrout)にて、通常の配管入力と同様に、始点、中間点、終点を結ぶ。
右図はn=4の例。P1、P4は端点である。
-
各点に曲線の方向ベクトルを発生させる。
方向ベクトルを定義します。


-
ViとWi+1(i=1, 2, ・・・ ,n-1)に注目して、これらを2つの円弧(エルボ)でなめらかに結ぶ。
Piを通り、Viに平行な直線をL1、Pi+1を通り、Wi+1に平行な直線をL2とする。

L1上の点S:x = pi + sVi
L2上の点T:y = pi+1 + tWi+1 とおける
(piは点Piの位置ベクトル)△PiSQ が PiS = SQ なる二等辺三角形
△Pi+1TQ が Pi+1T = TQ なる二等辺三角形
となるようにST上の点Qが決まればよい。
(Qを接続点と呼ぶ)

-
よって以下のベクトル方程式を立てることができる。

この方程式を解き、接続点Qが決定される。
点Pi、Q(Pi+1 ,Q)を通り、Vi(Wi+1)に接する円はそれぞれ唯一に決まるので、円弧が得られる。 -
N個の点は2(N-1)個の円弧でなめらかに結ばれた。

フレキシブルホース長について
-
ホース長は、「表現方法」の手順5の様に、「ホース入力」により設定(入力)した各点を通るなめらかな曲線で結んだ(円弧補間)軌跡の長さです。
-
ホース部分を2次選択した時、プロパティにホース長さを表示します。(長さはホース始点からホース終点まで(入力点間)の長さです)

この長さは、スプール図の材料欄の フレキシブルホースの欄にも表示されます。

-
また、AG(J)CNST C059ページ(『集計条件共通』【材料集計出力の詳細設定】参照)にてホース長の表示単位を設定し、その単位で切り上げた数値を各種材料欄に表示することも可能です。
【例.ホース実長=2752(mm)でAG(J)CNST C059ページ5W目=600(バージョンフラグ),6W目=500(mm)(ホース長表示単位)と設定した場合、各種材料欄では3000(mm)という表示になります。】
配管サポートファスナシンボルの種類と入力 機能的表示図形
入力方法は機能Code(機能記号)呼び出しとします。

| 名称 | 機能Code | 機能名称 | IPTN Code | |||
|---|---|---|---|---|---|---|
| ① | シュー | 2381 | SHOE | 111 | 814 | |
| ② | 当板付シュー | 2382 | RSHO | 111 | 814 | |
| ③ | スツール | 2383 | STOL | 312 | ||
| ④ | 当板付スツール | 2384 | RSTL | 312 | ||
| ⑤ | ダミーサポート | 2385 | DSPT | 323 | ||
| ⑥ | 当板付ダミーサポート | 2386 | RDSP | 323 | ||
| ⑦ | ストッパ | 2387 | STOP | 735 | ||
| ⑧ | サドル | 2388 | SADD | 111 | 814 | |
| ⑨ | 補強板 | 2389 | RPAD | 111 | 814 | |
| ⑩ | ファスナ | 2390 | FAST | 814 | ||
| ⑪ | Uボルト、ナット | 2391 | UB.N | 111 | ||
| ⑫ | クランプ付ハンガ | 2394 | C.HA | 321 | ||
| ⑬ | 段型クランプ | 2395 | S.CL | 636 | ||
| ⑭ | Uバンド | 2396 | PLWUB | 734 | 814 | |
| ⑮ | アンカ | 2397 | ANCH | 111 | 637 | 814 |
| ⑯ | ガイド付きシュー | 2398 | SHWG | 111 | 736 | 814 |
| ⑰ | ガイド | 2406 | GUIDE | 736 | ||
| ⑱ | レスティング | 2407 | REST | 734 | 814 | |
| ⑲ | スプリングハンガ | 2408 | SPR_HGR | 1023 | ||
| ⑳ | コンスタントハンガ | 2409 | CNST_HGR | 1024 | ||
| ㉑ | クランプ付シュー | 2419 | SHCL | 111 | 814 | |
| ㉒ | Uボルト、ナット | 2420 | UBGS | 111 | ||
| ㉓ | ガイド付きシュー | 2421 | SHGS | 111 | 736 | 814 |
| ㉔ | パイプハンガー ※ | 2417 | PPHG | 814 | ||
| ㉕ | G付クランプシュー ※ | 2422 | CSWG | 111 | 736 | 814 |
| ㉖ | タイトクランプシュー ※ | 2423 | CSWA | 111 | 637 | 814 |
※:これらのシンボルは組図には反映されません。
同クラスで同機能の品目種区分入力例
事例1
PMSにネジ込みキャップ(ITEM Code:3411)を登録することで、ドレン、ベント向けのネジ込み接続のキャップを他のSW接続等のキャップとは別に入力が可能です。
入力方法
PMSに通常のキャップとは別にネジ込みキャップ(ITEM Code:3411)を登録します。
3Dモデル入力によりドレン、ベントラインを入力します。
[名称変更]によりドレン、ベントラインのキャップを「411:ネジキャップ止め」に置き換えます。

サンプル配管スプール図
※画像を選択すると拡大表示します。
事例2
機能名称:"径違いニップル"と"径違いソケット"の配管継ぎ手は、共に機能Codeに、96:同心サイズ変化が定義されている為、PMSにこの両部品を同じサイズレンジで定義するとモデリングでは常に"径違いソケット"が入力されます。
配管継ぎ手類の選定プロセスは、BG(J)ISPRに定義してある順です。今回の場合、"径違いソケット:3016"は"径違いニップル:3046"の前に定義されている為、同じ機能Code、接続形式の配管部品の時は先に定義されている"径違いソケット"が選ばれます。
入力方法
"径違いニップル"を入力する場合は、「機能Code:97 独立径違いニップル」を使用します。
配管モデルを二次選択 -> 配管部品挿入(継手類)-> 機能Codeで"97"をキーインすると、材料集計、スプール図材料欄に"径違いニップル"として集計されます。
バケットストレーナ、水抜栓の入力方法 配管付属品
| 本体 | 機能Code | 機能記号 | 接続形式 | ISFLG | NWDP | 材集 | ダミー付属品 | 機能Code | 機能記号 | 接続形式 | ISFLG | NWDP | 材集 |
|---|---|---|---|---|---|---|---|---|---|---|---|---|---|
| バケットストレーナ | 2224 | B.ST | FL'G | 20 | 0 | 有 | ダミーノズル | 2312 | DNZP | FL'G | 20 | 0 | 無 |
| 水抜栓 | 2280 | L.DR | FL'G | 20 | 0 | 有 | ダミー水抜栓 | 2319 | DMDR | FL'G | 20 | 0 | 無 |
| 水抜栓 | 2280 | L.DR | SCRD、SW | 0 | 2 | 有 | ダミー水抜栓 | 2319 | DMDR | SCRD、SW | 0 | 2 | 無 |
バケットストレーナの入力方法
| 1. |
![]() |
段差をつけてラインを入力する。 |
|---|---|---|
| 2. |
![]() |
流れ方向に対して手前側のエルボの部分に本体を入力する。 |
| 3. |
![]() |
流れ方向に対して後ろ側のエルボの部分にダミーノズルを入力する。 |
| 4. |
![]() |
ドレンノズルがある場合は別ラインで入力し高さ、位置を調節します。 V6.90にて追加した材集on/off機能を設定し、ドレンラインを材集から外し、バルブのみの材集に変更します。 |
水抜栓の入力方法
| 1. |
![]() |
段差をつけてラインを入力する。 |
|---|---|---|
| 2. |
![]() |
流れ方向に対して後ろ側のエルボの部分に本体を入力する。 |
| 3. |
![]() |
流れ方向に対して後ろ側のエルボの部分にダミー水抜栓を入力する。 |
外形寸法についての制約条件
-
全ての配管付属品、計装品の外形寸法P1~P5の値は1.0mm~32,767mmの範囲で設定されます。
もし、P1~P5の値が3,276mm以上の時は、小数点以下の入力は不可です。
整数値で入力して下さい。
-
これ以上の寸法の部品を入力したい場合は、ダミーノズルや同心付属品等を組み合わせて形状を作成して下さい。
機能Code 機能記号 接続形式 ISFLG NWDP 材集 ダミーノズル
付属品用2312 DNZP FL'G 20 0 無 ダミーノズル
計装用3090 DNZI FL'G 20 0 無 ダミーノズルは材料集計されません。
-
P1~P5までパラメータが最大で5つ設定できますが、この中でUserが常に任意に設定できるものはP1(外長、面間)のみで、P2~P5は各シンボルにより任意に設定できるものとできないものがあります。
一般にその個々のシンボルにおいて、接続する配管の外径や、フランジ外径等に合致すべきパラメータについては、自動的にその配管のSizeとクラスにより設定されます。
フランジアダプタ
チューブ、サニタリスペック側に部品を定義します。PMS名称/機能名称は、共通で「フランジアダプタ」: 3055
機能名称は、フランジアダプタ接続:55:FLA、反転フランジアダプタ接続:56:FLARがあります。
入力に使うのはフランジアダプタ接続:55:FLAとなります。
| 規格 | 接続形式 | 肉厚/呼び圧 | General PMS | 備考 | |||
|---|---|---|---|---|---|---|---|
| SWAGELOK | 915 | FLG-BT | 1670 | 250K | 1159 | J50P-I,J50P-m J51P-I,J51P-m |
BITE接続とのアダプタ |
| 大阪サニタリ | 890 | FLG-FR | 1633 | 10K | 1113 | a64 A55 | ヘルール接続とのアダプタ |
| 大阪サニタリ | 890 | FLG-FR | 1633 | Sch10S | 1232 | a54 a57 | |
| 大阪サニタリ | 890 | FLG | 1649 | 10K | 1113 | ※ | BW接続とのアダプタ 接続形式:FLGのフランジアダプタをPMSに定義すると自動でBWの接続変化がセットされ材集はFLGxBWに変化します |
| 大阪サニタリ | 890 | FLG | 1649 | Sch10S | 1232 | a60 | |
| トーステ | 893 | FLG-FR | 1633 | 10K | 1113 | ※ | ヘルール接続とのアダプタ |
| トーステ | 893 | FLG-FR | 1633 | Sch10S | 1232 | a54T | |
| トーステ | 893 | FLG | 1649 | 10K | 1113 | ※ | BW接続とのアダプタ 接続形式:FLGのフランジアダプタをPMSに定義すると自動でBWの接続変化がセットされ材集はFLGxBWに変化します |
| トーステ | 893 | FLG | 1649 | Sch10S | 1232 | a60T | |
※印の部品は登録は有りますがPMSの設定はしてありませんので使用する場合は設定済みのフランジアダプタの肉厚/呼び圧を変更してユーザにて準備してください。
入力手順
-
ラインを入力します。
-
「配管部品挿入」ダイアログのサニタリまたはチューブ継手の中にある「55-フランジアダプタ接続」を選択します。

チューブのフランジアダプタは常に55:FLAです。
サニタリフランジアダプタは入力後以下の判定基準によって反転フランジアダプタ接続:56:FLARに切り替わります。機能code 55 or 56 選択の判定基準 機能code 同径 JIS → サニタリへの流れ 55:FLA サニタリ → JISへの流れ 56:FLAR 異径 流れ方向に関係なく JIS側が大>サニタリ側小サイズ 例)1S x25A 55:FLA JIS側が小<サニタリ側大サイズ 例)1.5Sx25A 56:FLAR V9.10以降、フランジアダプタ(55:FLA)と反転フランジアダプタ(56:FLAR)はどちらを入力しても上記の基準に合うように自動で切り替わります。
例えば、流れ順をサニタリ→JISとした時にFLAを選択しても、同径とすると自動でFLARに切り替わります。 -
「クラス変化位置設定」ダイアログが表示されるので変化位置とクラスを設定します。
サニタリ、チューブが上流側の時:シンボル後(3)
サニタリ、チューブが下流側の時:シンボル前(2)

※本ダイアログを自動発生させるにはBG(J)ISPRのW#92(CR列):iSDBFクラス変化指定フラグに1が設定してあることが必要です。
V9.10以降のBGISPRには設定済みですがそれ以前のBG(J)ISPRには未設定ですので必要に応じてユーザ様にて設定してください。
クラス変化指定フラグの詳細は06-10-6-3を参照してください。 -
「偏心シンボルの設定」ダイアログよりサイズを設定します。

-
「OK」を押下して入力完了です。




















































