1310 通り芯、機器文字
通り芯
通り芯の編集
通り芯の移動
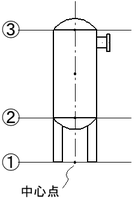
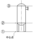
通り芯は中心点を境に上下、左右等2分割して表示しています。
よって、下図のようにClickした側の半分のみ移動します。

通り芯の移動と寸法線の関係
寸法線の発生時に指定した寸法クリッピングボックス内にある通り芯をボックス外へ移動後に図面を再読み込みすると、ボックス外に移動した通り芯の寸法線は表示しません。

通り芯の削除
通り芯は中心点を境に上下、左右等2分割して表示しています。
よって、下図のようにClickした側の半分のタグ部分(風船部分)のみを削除します。

通り芯の完全削除
-
通り芯を文字削除した場合はタグ部分(風船部分)のみを削除します。
-
通り芯を直線部分も含めて完全に削除する場合は、以下の手順で操作して下さい。
-
上下、左右等の両側の端点を中心点に重複させるように移動する。
-
移動後に、図面を再読み込みすると通り芯を完全に表示しない。
-
-
通り芯の長さが図面上5mm以下の通り芯は表示しません。
通り芯 レイヤ
各XYの方向に表示する距離の数字は、A(B)CNSTのS090 Pageに設定することにより、上のせ表示されます。
文字レイヤNo.23により、通り芯の形式を変更することができます。
| No.23 | 形式 | 出力例 |
|---|---|---|
| 0 | 非表示 | |
| 1 | 通り芯のみ表示 | ![]() |
| 2 | 通り芯と座標表示
※斜め通り芯の場合は、座標を表示しません |
![]() |
| 3 | ||
| 4 | ||
| 5 | 各プラントで決定されるE、W、S、N(東西南北)の方向表示となります | ![]() |
| 6 | ||
| 7 | ||
| 8 | ||
| 9 |
通り芯位置の値の上乗せ
以下の第1W目に470と定義し、第11、12W目X、Yの値を上のせ分としてm単位で設定しますと、組図の通り芯やスプール図のスタート、エンドポイント値(mm単位)に加算されて表示されます。
| AG(J)CNST S090 | ||||||||||
|---|---|---|---|---|---|---|---|---|---|---|
| 1 | 2 | 3 | 4 | 5 | 6 | 7 | 8 | 9 | 10 | |
| Ver.No.
475 |
0x | |||||||||
| 上のせ X(m)
(例)18000 |
Y(m)
(例)25000 |
Z(m)
10000 |
1x | |||||||
| 2x | ||||||||||
| 3x | ||||||||||
| 4x | ||||||||||
| 5x | ||||||||||
| 6x | ||||||||||
| 7x | ||||||||||
| 8x | ||||||||||
| 9x | ||||||||||
通り芯の編集 3Dモデル入力の編集作業によるm3dvの既存図面への影響について
3Dモデル入力で通り芯を追加、消去、修正、回転した場合のm3dvの既存図面(SEC#単位)への影響について説明します。
未編集の既存図面の場合
3Dモデル入力で追加、修正、回転した通り芯はデフォルト表示されます。
3Dモデル入力で消去した通り芯は表示されません。
編集済みの既存図面の場合
3Dモデル入力で追加、消去、修正、回転した通り芯が既存図面のクリッピング・ボックスに含まれない場合、特に影響は受けません。
3Dモデル入力で追加、消去、修正した通り芯が既存画面のクリッピング・ボックスに含まれる場合は、以下の通りです。
-
追加した通り芯はデフォルトで表示されます。
-
消去した通り芯は表示されません。
-
修正した通り芯について
-
m3dvではクリッピング・ボックスに含まれる順に通り芯の編集データを記録しています。
3Dモデル入力上 m3dv上
(編集済みの既存図面)例1) 3Dモデル入力による通り芯の修正前 

例2) 3Dモデル入力による通り芯の修正後 Bの通り芯をm3dvの既存図面のクリッピング・ボックス外へ移動します。
m3dvでの通り芯の編集データの記録順が、3Dモデル入力上の通り芯データと適合しないために、m3dvの既存図面はAの通り芯の編集位置は保持され、C、Dの通り芯の編集位置が変更されます。
クリッピング・ボックス外へ移動

-
中心点が変更された通り芯は編集位置が変わります。
3Dモデル入力で入力された通り芯を、m3dvでは中心点を基準に上下または左右に分割して、表示しています。
3Dモデル入力上 m3dv上
(編集済みの既存図面)例1) 3Dモデル入力による通り芯の修正前 

例2) 3Dモデル入力による通り芯の修正後 A,Bの通り芯を下方向に延長します。
A,Bの通り芯の中心点が下方向に移動するために、m3dvの既存図面は、Cの通り芯の編集位置は保持され、A,Bの通り芯の編集位置が変更されます。


※3Dモデル入力で通り芯を回転した場合も中心点が変われば、m3dvの既存図面の通り芯の編集位置が変更されます。
-
フロア高さ 3Dモデル入力の編集作業によるm3dvの既存図面への影響について
フロア高さの表示変更
文字レイヤNo.24により、フロア高さの表示を変更することができます。
| 文字レイヤNo.24 | 形式 | 出力例 |
|---|---|---|
| 0 | 非表示 | |
| 1 | EL | EL+3000 |
| 2 | GL | GL+3000 |
| 3 | FL | FL+3000 |
| 4 | CDL | CDL+3000 |
| 5 | BFL | BFL+3000 |
| 6 | ||
| 7 | ||
| 8 | ||
| 9 | User定義 | (定義文字列)3000 |
m3dvの既存図面(SEC#単位)への影響
3Dモデル入力でフロア高さを追加、消去、修正した場合のm3dvの既存図面(SEC#単位)への影響について説明します。
※3Dモデル入力で入力したZ軸に垂直な通り芯は、m3dvでフロア高さとして表示されます。
未編集の既存図面の場合
3Dモデル入力で追加、修正したフロア高さはデフォルト表示されます。
3Dモデル入力で消去したフロア高さは表示されません。
編集済みの既存図面の場合
3Dモデル入力で追加、消去、修正したフロア高さが既存図面のクリッピング・ボックスに含まれない場合特に影響は受けません。
3Dモデル入力で追加、消去、修正したフロア高さが既存画面のクリッピング・ボックスに含まれる場合、以下の通りです。
-
追加したフロア高さはデフォルト表示されます。
-
消去したフロア高さは表示されません。
-
修正したフロア高さについて
-
クリッピング・ボックス外へ移動する様に修正したフロア高さがある場合は、編集位置が変わるフロア高さがあります。
m3dvではクリッピング・ボックスに含まれる順にフロア高さの編集dataを記録しています。
3Dモデル入力上 m3dv上
(編集済みの既存図面)例1) 3Dモデル入力によるフロア高さの修正前 

例2) 3Dモデル入力によるフロア高さの修正後 ②のフロア高さをm3dvの既存図面のクリッピング・ボックス外へ移動します。
m3dv上のフロア高さの編集dataの記録順が、3Dモデル入力上のフロア高さと適合しないために、m3dvの既存図面は①のフロア高さの編集位置は保持され、③、④のフロア高さの編集位置が変更されます。


-
中心点が変更されたフロア高さは編集位置が変わります。
3Dモデル入力で入力されたフロア高さを、m3dvでは中心点を基準に左右に分割して、表示しています。
3Dモデル入力上 m3dv上
(編集済みの既存図面)例1) 3Dモデル入力によるフロア高さの修正前 

例2) 3Dモデル入力によるフロア高さの修正後 ①,②のフロア高さを左方向に延長します。
①,②のフロア高さの中心点が左方向に移動するために、m3dvの既存図面は、③のフロア高さの編集位置は保持され、①,②のフロア高さの編集位置が変更されます。


-
機番の形式 機番の文字列
機能
文字レイヤNo.22により、機番の形式を変更することができます。
| 文字レイヤNo.22 | 形式 | 出力例 |
|---|---|---|
| 0 | 非表示 | |
| 1 | 下線(単線) (文言変更) | ![]() |
| 2 | 下線(2重線) (文言変更) | ![]() |
| 3 | 長方形 | ![]() |
| 4 | 長円 | ![]() |
| 5 | ||
| 6 | ||
| 7 | ||
| 8 | ||
| 9 |
機番の文字列について
3Dモデルで入力された文字列を表示しますが、User定義パターンの設定により変更可能です。
User定義パターンについて
-
User定義パターンを設定している場合は、そのパターンに合わせた文字列を表示します。
User定義パターンが設定されていれば、自動的にそのパターンの文字列を表示します。
-
機番の文字列の!以降の文字列は表示しません。
機器名称の形式 機器名称の文字列
機能
文字レイヤNo.4により、機器名称の形式を変更することができます。
| 文字レイヤNo.4 | 形式 | 出力例 |
|---|---|---|
| 0 | 非表示 | |
| 1 | 下線(単線) (文言変更) | ![]() |
| 2 | 下線(2重線) (文言変更) | ![]() |
| 3 | ||
| 4 | ||
| 5 | ||
| 6 | ||
| 7 | ||
| 8 | ||
| 9 |
機器名称の文字列設定について
図面に機器名称を表示するには、下記手順で機器名称の文字列を登録してください。
機器名称の登録方法
mrout、もしくは、バッチ処理で作成したFile:JEQMSTを参照して、図面に機器名称を表示します。
機器名称の登録方法については、以下のマニュアルPageを参照してください。
-
mroutによる登録→「11-01 機器入力修正」を参照
-
バッチ処理による登録→「11-05 機器、ノズルバッチ入出力」を参照
機器・ノズル高さ
機器高さは機器オリジンの高さを、ノズル高さはノズルオリジンの高さを自動表示します。
機器高さのレイヤ設定より表示形式が変更可能です。(表示形式の種類は配管高さと同様です。)
部品高さのレイヤ設定より表示形式が変更可能です。
| 0 | 非表示 | 高さは表示しません。 |
|---|---|---|
| 1 | ノズル高さのみ | ノズル高さのみ表示します。 |
| 2 | ノズル、立て付き一般弁、付属品、計装品高さ | ノズル、立て付き一般弁、付属品、計装品、端点、配管接続端(EPPC)の全ての高さを表示します。 |
編集済みのセクション内に含まれる機器やノズルを3Dモデル入力(mrout)で削除すると、そのセクションのノズル高さの編集位置を保持できない場合があります。ノズル高さを再編集して下さい。
注意事項
-
ノズル高さのEL等の高さ基準文字列は、機器高さの文字レイヤによって決まります。
また、機器高さの文字レイヤが非表示の場合には、フロア高さの文字レイヤによって決まります。
-
部品高さのEL等の高さ基準文字列は、配管高さの文字レイヤによって決まります。
配管高さの文字レイヤが非表示の場合には、フロア高さの文字レイヤによって決まります。
-
部品高さとノズルタグの文字レイヤの関係について
-
ノズルタグの文字レイヤによって、ノズル高さを以下の様に表示します。
ノズルタグの文字レイヤ ノズル高さ 非表示または閉止フランジ止め以外 閉止フランジ止めもの以外のノズル高さ 全て 全てのノズル高さ -
ノズル高さを編集済みのセクションでノズルタグの文字レイヤを変更すると、編集位置が保持されない、または表示されないノズル高さが生じる場合があります。
その場合は、以下の様に対処して下さい。
-
編集位置が保持されないノズル高さが生じた場合はノズル高さを再編集して下さい。
-
表示されないノズル高さが生じた場合は文字レイヤ設定時に部品高さの再表示をチェックして下さい。
この場合は部品高さも再表示されます。
-
-
組図立面表示事例

レイヤNo.33 機器中心十字角度
機器中心十字角度
機器中心十字角度は、機器のオリジンを中心として、C.N.方向を、0°とした角度、およびPCR(Pitch Circle Radius)寸法を表記します。
機器中心十字角度としては、角度のみ表記しますが、同時にレイヤ19の機器芯の十字線も、この角度の表示位置まで伸ばして表記します。
機器中心十字角度表示
-
機器中心十字角度、および機器のPCR寸法には、いずれも発生機能はなく、レイヤを非表示以外にすることで自動発生します。
-
機器中心十字角度の表示制御は、文字レイヤNo.33で行います。
設定可能範囲は、下表のとおりです。
レイヤNo.33設定 説明 0 非表示 機器中心十字角度、PCR寸法ともに表示しません。 1 表示 機器中心十字角度、PCR寸法ともに表示します。 2 角度のみ 機器中心十字角度のみ表示します。 3 PCR寸法のみ PCR寸法のみ表示します。
表示条件
機器中心十字角度の表示条件は下表のとおりです。
| 1 | 平面図のみ発生可能です。 |
| 2 | 機器中心線は、レイヤNo.19:機器芯の表示がONの場合に、機器中心十字角度の位置まで延伸して表記します。 |
| 3 | 横向きの機器(ポンプや熱交など)の場合は、機器中心十字角度は表記しません。 |
| 4 | PCR寸法の表示位置は、AG(J)CNSTの設定(注意事項2)参照)によります。 |
操作方法
機器中心十字角度は、対話による表示位置の変更と寸法線の削除はできません。
| 移動の方法 | 削除の方法 |
|---|---|
| 移動はできません。 | 削除はできません。 |
サンプル図

注意事項
-
コンストラクションノースを0度として時計回りに角度文字を表示します。
-
PCR寸法の出力方向は、AG(J)CNST S093 W#61で設定されている値でC.N.方向を0度とした角度方向に表示します。
レイヤNo.34 放射状引き出し線
放射状引き出し線
放射状引き出し線は、機器のノズルおよび、周囲のフロア(ラダーや階段など)に向かって、機器のオリジンを中心として放射状に一点鎖線を表記します。また、機器のオリジンを中心として、ピッチサークルの距離にノズルが存在する場合に、ピッチサークルの大きさの円を、一点鎖線で表記します。
放射状引き出し線表示
-
放射状引き出し線、およびPCDには、いずれも発生機能はなく、レイヤを非表示以外にすることで自動発生します。
-
放射状引き出し線の表示制御は、文字レイヤNo.34で行います。
設定可能範囲は,下表のとおりです。
レイヤNo.34設定 説明 0 非表示 放射状引き出し線、ピッチサークルともに表示しません。 1 表示 放射状引き出し線、ピッチサークルともに表示します。 2 放射状引き出し線のみ 放射状引き出し線のみ表示します。 3 ピッチサークルのみ ピッチサークルのみ表示します。
表示条件
放射状引き出し線の表示条件は下表のとおりです。
| 1 | 平面図のみ発生可能です。 |
| 2 | 機器中心から各ノズルのオリジン位置に向けて線を描画します。 |
| 3 | 機器中心から各ラダーのオリジン位置に向けて線を描画します。 |
| 4 | ピッチサークルが取れない場合は、ピッチサークルは描画しません。 |
操作方法
放射状引き出し線は、対話による表示位置の変更はできません。
| 移動の方法 | 削除の方法 |
|---|---|
| 移動はできません。 | 削除はできません。 |
サンプル図

注意事項
特にありません。
レイヤNo.35 同心円状差分角度、線
同心円状差分角度、線
同心円状差分角度、線は、機器の中心を基準としてピッチサークル上に存在するノズル間の角度を表記します。
同心円状差分角度、線表示
-
同心円状差分角度、線には、発生機能はなく、レイヤを非表示以外にすることで自動発生します。
-
同心円状差分角度、線の表示制御は、文字レイヤNo.35で行います。
設定可能範囲は、下表のとおりです。
レイヤNo.35設定 説明 0 非表示 同心円状差分角度、線を表示しません 1 表示 同心円状差分角度、線を表示します
表示条件
同心円状差分角度、線表示の表示条件は下表のとおりです。
| 1 | 平面図のみ発生可能です。 |
| 2 | ピッチサークル上に存在するノズルに対して、角度および線を表記します。 |
| 3 | 対象となるノズルの数が、ピッチサークル上に1つ以下の場合は、表示しません。 |
操作方法
同心円状差分角度、線表示は、対話による表示位置の変更が可能です。
| 移動の方法 | 削除の方法 | |
|---|---|---|
| 1 | プロパティ欄の「半径」の値を変更することで、表示位置の調整を行う事が出来ます。 | 削除はできません。 |
| 2 | 自動発生、および再表示時は、AG(J)CNSTの設定値を参照し、表示位置が決まります。詳細は注意事項を参照してください。 | |
サンプル図

注意事項
-
自動発生時の半径は、PCR(Pitch Circle Radius)とAG(J)CNSTに設定している値で決定します。
-
自動発生時の半径設定は、AG(J)CNST S093 W#71に、PCRを1として、0.01倍単位で倍率を設定します。
-
AG(J)CNSTの設定が、無効または未設定の場合は、PCRの0.5倍となります。
-
画面上で同心円状差分角度、線がピックしづらい場合がありますので、その場合は、文字レイヤツリーで選択してください。
レイヤNo.36 同心円状絶対角度
同心円状絶対角度
同心円状絶対角度は、機器の中心を基準としてピッチサークル上に存在するノズルの角度を、C.Nを0度とした絶対角度で表記します。
同心円状絶対角度表示
-
同心円状絶対角度には、発生機能はなく、レイヤを非表示以外にすることで自動発生します。
-
同心円状絶対角度の表示制御は、文字レイヤNo.36で行います。
設定可能範囲は、下表のとおりです。
レイヤNo.36設定 説明 0 非表示 同心円状絶対角度を表示しません 1 表示 同心円状絶対角度を表示します
表示条件
同心円状絶対角度の表示条件は下表のとおりです。
| 1 | 平面図のみ発生可能です。 |
| 2 | ピッチサークル上に存在するノズルに対して、角度を表記します。 |
| 3 | ピッチサークル上に対象となるノズルが無い場合は、表示しません。 |
操作方法
同心円状絶対角度は、対話による表示位置の変更が可能です。
| 移動の方法 | 削除の方法 | |
|---|---|---|
| 1 | プロパティ欄の「半径」の値を変更することで、表示位置の調整を行う事が出来ます。 | 削除はできません。 |
| 2 | 自動発生、および再表示時は、AG(J)CNSTの設定値を参照し、表示位置が決まります。詳細は注意事項を参照してください。 | |
サンプル図

注意事項
-
自動発生時の半径は、PCR(Pitch Circle Radius)とAG(J)CNSTに設定している値で決定します。
-
自動発生時の半径設定は、AG(J)CNST S093 W#72に、PCRを1として、0.01倍単位で倍率を設定します。
-
AG(J)CNSTの設定が、無効または未設定の場合は、PCRの0.25倍となります。
-
画面上で同心円状絶対角度がピックしづらい場合がありますので、その場合は、文字レイヤツリーで選択してください。
レイヤNo.37 ノズル接続斜め寸法線
ノズル接続斜め寸法線
ノズル接続斜め寸法線は、ピッチサークル上のノズルに接続している配管、および機器外周にあるノズルの機器外周からノズル端面までの寸法を表記します。
ノズル接続斜め寸法線表示
-
ノズル接続斜め寸法線には、発生機能はなく、レイヤを非表示以外にすることで自動発生します。
-
ノズル接続斜め寸法線の表示制御は、文字レイヤNo.37で行います。
設定可能範囲は、下表のとおりです。
レイヤNo.37設定 説明 0 非表示 ノズル接続斜め寸法線を表示しません 1 表示 ノズル接続斜め寸法線を表示します
表示条件
ノズル接続斜め寸法線の表示条件は下表のとおりです。
| 1 | 平面図のみ発生可能です。 | |
| 2 | PCR半径内のノズルに対しては寸法は表示しません。 | |
| 3 | PCR半径外のノズルは、内側のノズルに対して発生しますが、以下の条件となります。 | |
| 3-1 | 対象ノズルと機器中心を直線で結び、線上にあるノズルで対象となるノズルの内側にあり、最も近いノズルで最も近接するノズルが、PCR半径以上にある場合は寸法を表示します | |
| 3-2 | 側面についているノズルで、内側に該当するノズルが無い場合は、ノズル高さを寸法で表示します | |
| 3-3 | 側面のノズルで、ノズルに配管が付いている場合は曲がりまたは分岐までの寸法を表示します | |
| 3-4 | 平面の上向きについているノズルで、ノズルに配管が付いている場合は垂直→水平→垂直のとき表示します | |
| 3-5 | 側面に付いているノズルで、ノズルに配管が付いていない場合は中心からの延長上に垂直の配管がある場合は表示します | |
操作方法
ノズル接続斜め寸法線は、対話による表示位置の変更と寸法線の削除が可能です。
| 移動の方法 | 削除の方法 | ||
|---|---|---|---|
| 1 | 移動する寸法線を選択します。 | 1 | 削除する寸法線を選択します。 |
| 2 | 選択した寸法線に、トラッカが表示されます。 | 2 | 選択した寸法線に、トラッカが表示されます。 |
| 3 | 移動したい位置に、寸法線をドラックで移動します。 | 3 | 削除を実行します。削除の実行は、編集Menu、Tool Bar、右ClickによるポップアップMenuから「削除」を選択することで実行します。 |
| 4 | ドラッグした位置に寸法線が再描画され、移動が完了します。 | 4 | 続けて寸法を選択することで連続削除が可能です。 |
| 5 | 右ClickのポップアップMenuから「通常選択」を選択することで、削除が確定します。
この時の削除確認で、「いいえ」を選択すると、削除を取りやめることができます |
||
操作についての詳細は、以下のPageを参照してください。
m3dv 全体操作 「通常選択 タグ移動」を参照
サンプル図

注意事項
-
削除した寸法値は個別で再表示できません。再表示する場合は、文字レイヤ設定Dialogで再表示をチェックして再表示します。
ただし、編集した情報は全て破棄され寸法位置は初期値となります。
-
各寸法同士の位置調整は、行われません。









