1311 寸法、角度
自動寸法
寸法の概要
-
入力した3DモデルのDataの指定したエリアから寸法を発生します。
-
寸法の様式として、引き出し線、寸法線、寸法値を表記します。
-
EYECADには、予め定めた物体間の寸法を自動で発生させる寸法と、任意の物体間の寸法を発生させる任意寸法があります。
-
本章では自動で発生させる寸法について説明します。
-
寸法を発生コマンドを実行すると、寸法発生ダイアログが表示されます。詳細については、「寸法発生のダイアログの説明」を参照してください。
-
寸法にはいくつかの発生種類が存在します。寸法発生種類の呼び名とその表す寸法を以下に示します。
寸法発生種 発生させる内容 大寸法 通り芯間の寸法です。 中寸法 通り芯、機器間の寸法です。 小寸法 大、中寸法とカタログライン以外の曲りと分岐、機器ノズル、空中開口(EPPO)間の寸法です。 小細寸法 大、中、小寸法とカタログラインの曲りと分岐間の寸法です。 中のみ寸法 機器間の寸法です。 小のみ寸法 カタログライン以外の曲がりと分岐間の寸法です。 サポート中寸法 中寸法とサポートポイント間の寸法です。 サポート小寸法 小寸法とサポートポイント間の寸法です。 フロア大寸法 大寸法とフロア間の寸法です。 フロア中寸法 中寸法とフロア間の寸法です。 フロア小寸法 小寸法とフロア間の寸法です。 ダクト大寸法 大寸法とダクト間の寸法です。 ダクト中寸法 中寸法とダクト間の寸法です。 ダクト小寸法 小寸法とダクト間の寸法です。
寸法発生における注意事項
-
発生する最小寸法値
寸法値が20mm未満の寸法は表示しません。
-
斜め通り芯の寸法値
斜め通り芯の寸法は拾いません。
-
フロアレベルの表示について
以下の条件1、2を設定した場合は、プラントエリアに存在する全フロアレベルを表示します。
しかし、寸法クリップボックス内にオリジンがないと、そのフロアレベルの寸法は表示しません。
条件1 高さ文字列のUser定義パターンの8W目に"XK"を設定。 条件2 [レイヤ設定]-文字レイヤで「フロア高さ」を「User定義表示様式」に設定。
寸法発生のダイアログの説明
【寸法発生】ダイアログの設定項目は、以下の通りです。

| 設定項目 | 内容 | |
|---|---|---|
| 図面座標 | 寸法を発生させる範囲を用紙の左下を原点にして、mm単位で設定します。 | |
| プラント座標 | 寸法を発生させる範囲をプラント座標のMin、Max(mm単位)で入力します。 | |
| 発生位置 | 寸法を発生する位置を図面座標で設定します。単位は、mmです。 | |
| 寸法間隔 | 寸法を発生させる図面上の間隔をmm単位で設定します。 | |
| 寸法種類 | 4方向一気 | 発生範囲の上下左右4方向に寸法を一度に発生させます。 |
| 標準 | サポート、フロア以外の寸法を発生します。 | |
| サポート | 大、中、小、小細、細、中のみ、小のみの各寸法とサポートポイント間の寸法を発生します。 | |
| フロア | 大、中、小、小細、細、中のみ、小のみの各寸法とフロア間の寸法を発生します。 | |
| ダクト | 大、中、小、小細、細、中のみ、小のみの各寸法とダクト間の寸法を発生します。 | |
| 大 | 通り芯間の寸法を発生します。(大寸法) | |
| 中 | 通り芯、機器間の寸法を発生します。(中寸法) | |
| 小 | 大、中寸法とカタログライン以外の曲がりと分岐、機器ノズル、空中開口(EPPO)間の寸法を発生します。(小寸法) | |
| 小細 | 大、中、小寸法とカタログライン以外の部品間の寸法を発生します。 | |
| 細 | 大、中、小寸法とカタログラインの曲がりと分岐間の寸法を発生します。(細寸法) | |
| 中のみ | 機器間の寸法を発生します。(中のみ寸法) | |
| 小のみ | カタログライン以外の曲がりと分岐間の寸法を発生します。(小のみ寸法) | |
| 単一(大~小のみ) | 選択した寸法でセクションの両端の寸法を発生します。 | |
| (ヒント)寸法の説明 | 寸法発生に関するヒントを示すダイアログを表示します。 | |
| 発生 | 設定した内容で寸法を発生します。 | |
| 終了 | 寸法発生ダイアログが閉じられ、文字情報対話へ戻ります。 | |
参考
-
ダイアログの寸法種類の設定は前回の設定状態で現れます。
発生する寸法値について
寸法値は、4方向一気、標準、サポート、フロアの各場合につき、大、中、小等の寸法が発生します。
従って、「標準」と「サポート」にチェックを付け、大、中、小各寸法にもチェックを付けた状態で寸法を発生させると、「標準」、「サポート」各場合について大、中、小の各寸法が発生し、6本の寸法が発生することになります。
(ヒント)寸法の説明
寸法発生ダイアログの下段に、「(ヒント)寸法の説明」ボタンがあります。
これをClickすると、寸法発生に関するヒントを示す下図の寸法の説明ダイアログが表示されますので、参考にしてください。

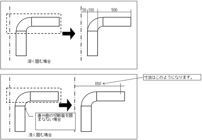
深さについて
深さを絞って寸法を発生すると、指定した範囲外にある部品などを除外した寸法を発生することが可能です。
深さは「図面座標」「プラント座標」に関係なく、プラント座標値で指定します。
初期値は、プラントBOXの座標値を前後に±1000広げた値が設定されます。
機器、および通り芯については、深さの範囲外にあっても寸法が発生するので注意してください。
自動寸法の概要、発生方法
寸法の発生方法
-
[寸法発生]モードに入ります。
[寸法発生]モードに入るには、2通りの方法があります。
-
メニューの〔発生(C)〕-〔寸法線(D)〕―〔寸法線(D)〕をClickします。
-
寸法線アイコンをClickします。
寸法発生モードに入ると、【寸法発生】ダイアログが表示されます。
-
-
寸法を発生させる対象を囲んで寸法発生対象を指定します。

発生対象の指定方法は、2通りあります。
-
マウスで発生対象を囲う方法
囲み始める個所でマウスの左ボタンを押し、押したままマウスを移動し、
発生対象を含む矩形を作成します。(マウスドラッグ)
この矩形で囲まれた範囲にあるものが寸法発生対象になります。
-
【寸法発生】ダイアログの"寸法線発生位置"を座標で指定する方法
【寸法発生】ダイアログに寸法線発生範囲の座標値を入力します。
座標値は、図面座標とプラント座標で設定できます。
各座標の特徴は以下の通りです。
図面座標 用紙の左下を原点として原点からの図面上の位置をmm単位で設定します。 プラント座標 3Dモデルを入力したプラントモデルにおける座標です。
mm単位で設定します。
-
-
寸法を発生させる位置を指定します。

発生位置の指定方法は、2通りあります。
-
マウスで発生位置を指定する方法
寸法を発生させる位置へマウスを移動しClickします。
発生位置を示すマークが表示されます。
-
【寸法発生】ダイアログで指定する方法
【寸法発生】ダイアログに寸法発生位置の座標値を用紙の左下を原点とし、原点からの図面上の位置と寸法の用紙上での間隔をmm単位で設定します。
-
-
【寸法発生】ダイアログの「寸法種類」から発生させる寸法を指定します。
寸法の指定後、[発生]をClickすると寸法が発生します。

-
寸法を繰り返し発生できます。
引き続き寸法発生対象を囲い、発生位置を指定することで寸法の発生を繰り返すことができます。

-
[寸法発生]モードを終了します。
[寸法発生]モードは、2通りの方法で終了できます。
-
ESCキーを押すことで[寸法発生]モードを終了し[編集]等の他モードに入ることができます。
-
【寸法発生】ダイアログの[終了]をClickします。
-
自動寸法の表示例
寸法表示例
以下の様に、寸法補助線間に寸法数字が重ならないように自動的に表記位置方向が変化します。
-
通常表示

-
寸法の段違い表示

-
横書き段違い表示

自動寸法発生事例
4方向一気の事例
-
寸法発生ダイアログの必要箇所にチェックを入れます。
-
寸法を表示させたいモデルがある範囲をドラッグします。
-
寸法を発生させたい場所をクリックします。
-
4方向に寸法が発生されます。

寸法種類 事例
各寸法種の発生イメージ
以下の図面の寸法が、どの寸法種で作成したかを任意文字で記入しました。
※画像を選択すると拡大表示します。
配管サポート配置図 事例
-
配管図には、サポート寸法、ファスナ記号、サポートタグNo.が表示可能です。
-
任意文字追記事例として、組図内サポートファスナマークの横に引出矢印付ファスナ詳細記号を記入しています。

自動寸法発生の注記事項
寸法値の表示ついて
Ver5.20以前での寸法値表示方法
-
モデルのポイント間の距離を四捨五入した値を寸法値として表示しました。
-
寸法値の合計の下1桁が1または9の場合は0になるように補正しました。
(例、1001→1000、999→1000に補正)
→a),b)の処理により同じモデル間同士の寸法に関わらず寸法を分割表示した場合と分割せずに表示した場合で表示される寸法値が異なる場合がありました。(下図参照)
Ver6.00以降での寸法値表示方法
-
モデルのポイントを四捨五入してからポイント間の距離(寸法値)を求めます。
-
寸法値の合計の下1桁が1または9の場合は0にする補正処理を廃止しました。

※)寸法値の計算方法を変更したため、Ver5.20以前で作成した図面の寸法値が1mm変わる寸法が出てくる可能性があります。
ダクト寸法ついて
-
寸法ボックスの囲い方により、下図のような違いがありますので、使い分けてください。

-
また、ダクト寸法を使用するセクションの陰点線レベルレイヤについては、紙面垂直方向のダクトを認識するために、(機器・ダクト)vs(機器・ダクト)をONにすることを推奨します。

任意寸法
任意寸法の概要
組図に自由に寸法を発生させます。
任意寸法の操作方法
-
[任意寸法発生]モードに入ります。

[任意寸法発生]モードに入るには、2通りの方法があります。
-
メニューの〔発生(O)〕-〔寸法(D)〕-〔任意寸法(F)〕をClickします。
-
アイコン
をClickします。[任意寸法発生]モードに入ると、【任意寸法発生】ダイアログが表示されます。

-
-
任意寸法のパラメータを指定します。
寸法を発生させる角度を指定します。
指定方法には、マウスを使う方法と【任意寸法発生】ダイアログを使う方法があります。
-
マウスを使う場合
-
任意寸法の始点となる基準点を指定します。
任意寸法の始点にマウスを移動し左ボタンをClickします。
-
任意寸法の角度を指定します。
マウスの左ボタンを押したまま、任意寸法を発生させたい方向にマウスを移動します。
マウスの動きに合わせて、基準点から直線が延びます。
この直線が任意寸法になります。
最適な角度になった状態でマウスの左ボタンを離すと、任意寸法の方向が決定します。
-
引き出し点を指定します。
引き出し線の開始点を指定します。
引き出し点の始点にしたい場所にマウスを移動し、左Clickしてください。
-
任意寸法の始点となる基準点を指定します。
-
【任意寸法発生】ダイアログを使用する場合
-
開始点の位置を指定します。
任意寸法を発生させる開始点の位置を指定します。
開始点は、図面の左下を原点としてmm単位で指定します。
-
任意寸法の角度を指定します。
用紙の水平右側を0度として、任意寸法の角度を指定します。
-
引き出し点を指定します。
引き出し線の開始点を指定します。
開始点は、図面の左下を原点としてmm単位で指定します。
-
基準点と引き出し線の開始点間の長さが寸法引き出し線の長さになります。
-
寸法引き出し線が不要な場合は、始点基準点上をClickしてください。
-
開始点と角度指定したポイント間の長さが0の場合は、寸法引き出し線を表示しません。


-
-
開始点の位置を指定します。
-
-
寸法値を設定します。
- 【任意寸法発生】ダイアログに寸法値を入力します。(「任意寸法の操作方法」の手順1を参照)
- 寸法値は、プラント上の寸法値をmm単位で入力します。
- 入力した寸法値は、縮尺にあわせて自動変換されます。
-
寸法を発生させる位置を指定します。
-
入力する寸法値は小数点第一位までのmm単位の数値にしてください。小数点第二位以下の数値は無視されます。
-
入力できる寸法値の最大数は10個です。
-
1mm以下の寸法値は入力できません。
1mm以下の寸法値が入力された場合は、再入力の状態になります。
-
小数点以下の数値が0の場合、小数点以下の0は表示しません。
例)100.5の場合は、100.5と表示します。100.0の場合は、100と表示します
-
-
任意寸法を発生させます。
【任意寸法発生】ダイアログの[発生]をClickしてください。

-
任意寸法を繰り返し発生できます。
手順2~4の作業を繰り返すことで、引き続き任意寸法を発生させることができます。
-
[任意寸法発生]モードを終了します。
[任意寸法発生]モードは、2通りの方法で終了できます。
-
ESCキーで終了させる方法
ESCキーを押すことで[任意寸法発生]モードを終了し、[編集]等の他モードに入ることができます。
-
【任意寸法発生】ダイアログで終了する方法
【任意寸法発生】ダイアログの[終了]をClickします。
-
【任意寸法発生】のダイアログ説明
【任意寸法発生】ダイアログの設定項目は、以下の通りです。(「任意寸法の操作方法」の手順1を参照)
| 設定項目 | 内容 |
|---|---|
| 開始点 |
任意寸法を発生させる開始点の位置を指定します。 開始点は、図面の左下を原点としてmm単位で指定します。 |
| 方向 | 用紙の水平右側を0度として、任意寸法の角度を指定します。 |
| 引き出し点 |
引き出し線の開始点を指定します。 引き出し線の開始点は、図面の左下を原点としてmm単位で指定します。 基準点と引き出し線の開始点間の長さが、寸法引き出し線の長さになります。 寸法を発生する位置を図面座標で設定します。単位は、mmです。 |
| 寸法 |
寸法値を10個まで入力できます。 寸法値は、プラント上の寸法値をmm単位で入力します。
|
任意寸法発生における注意事項
任意寸法の編集について
-
任意寸法の編集は、移動と回転が行えます。
-
また、プロパティで直接数値を変更することでも編集することができます。
角度表示発生の概要、方法、注意
角度表示発生の概要
セクション内の任意の位置に、文字を書き込むことができます。
角度表示発生の方法
-
[角度表示発生]モードに入ります。
[角度表示発生]モードに入るには、2通りの方法があります。
-
メニューの〔発生(C)〕-〔角度表示(A)〕をクリックします。
-
アイコン
をクリックします。
-
-
角度を計測する対象の配管を指定します。
画面上の配管ライン直管部をヒットします。
- 角度を計測する基準線を設定します。
- 始点を左クリックで指定し、マウスをドラッグすると、マウスの動きに合わせて直線が発生します。
- 角度表示の円弧の中心は、この直線と手順2で指定した配管の交点になります。
また、円弧の半径は、基準線の2番目の端点になります。
- 角度を表示したい位置まで基準線を延ばしたら、左ボタンを離してください。
-
角度の発生
-
基準軸は、ヒットした2点の位置によって0°、90°、180°、270°に補正されます。
-
補正後の軸を基準にして、配管までの角度を表示します。
-
-
角度の値
-
小数点以下1位まで発生します。
ただし、小数第一位が0の場合、小数点以下を表示しません。
-
180°の角度は発生しません。



-
